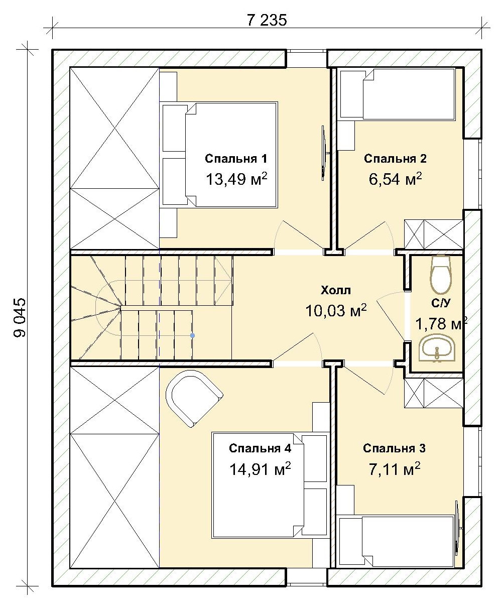
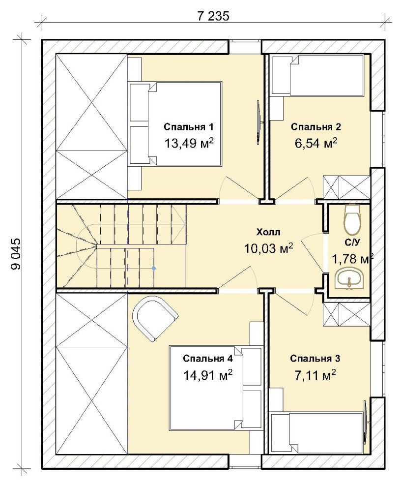
Дачный дом с мансардой 100 метров 7 на 9 м.
Фундамент: . Песчаная подушка не менее 30 см. Армированная утепленная бетонная плита 35 см, толщина полиэстирола 200 мм. Закладные под инженерные коммуникации (канализация, водоснобжение, электричество, отопление). Отопление водяное в полу, закладные. . Стены: . Автоклавный газобетон. Толщина стен 400 мм. Высота стен 2,25 м. Класс прочности на сжатие В, не менее 2,5 Н/кв.мм. Теплопроводность λ.,не более 0,092 В/(м.°С).Паропроницаемость µ., не менее 0,27 мг/м*ч*Па. Марка по морозостойкости F., не менее 100 циклов. Усадка при высыхании, не более 0,23 мм/м. Монолитные пояса и балки перемычек с термовставками из ППС 100 мм по наружным стенам. Армирование каждого третьего ряда. Штукатурка гипсовая всех внутренних стен (профиль маячковый), грунтовка стен. . Перекрытие: . Деревянные лаги. Утепление 150 мм минеральной ватой. Гидро-ветроизоляционная мембрана. Подшит черновой обрезной доской. . Кровля: . Металлочерепица "Монтерей". Крепление кровельными саморезами. Обрешетка 22 мм. . Двери: . Входная металлическая дверь с терморазрывом. Деревянные наборные глухие. В обсадных коробках. . Лестница: . Деревянная, наборная, с забежными ступенями.
6 фотографий







