CORAL 65M2
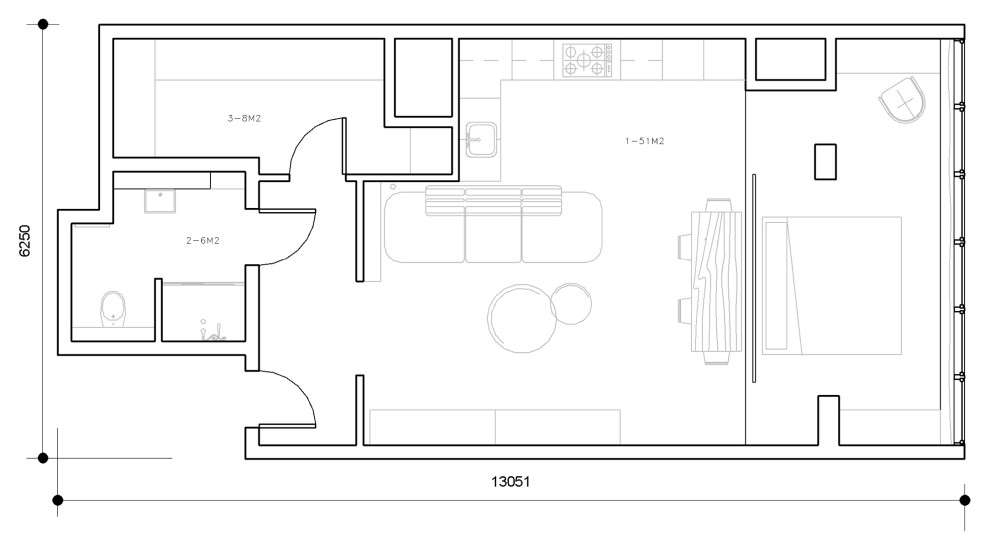
Перейдем к основам основ, а именно, не самым легким планировкам квартир-студий! 65м². . Сейчас мы покажем проект и подробно опишем, какие задачи ставил заказчик. . Задачи стояли следующие: . ◽Выделить максимум пространства под кухню-гостиную и зоны хранения, как и в целом в помещении, так и в полноценной гардеробной. . ◽ А также, избежать массивной застройки стен, оставив максимум света и пространства. . Чтобы достичь все условия мы решили отделить спальню стеклянной, тонированной перегородкой. Данное решение позволило нам создать помещение с минимальной потерей света. Спальню оборудовали рабочей зоной. Зона гардеробной получилась максимально вместительной, она является не только местом хранения вещей, но и постирочной. . Name: #pair_coral . Project year: 2018 . Design: #pairstudio
11 фотографий










