Чёрным по серому
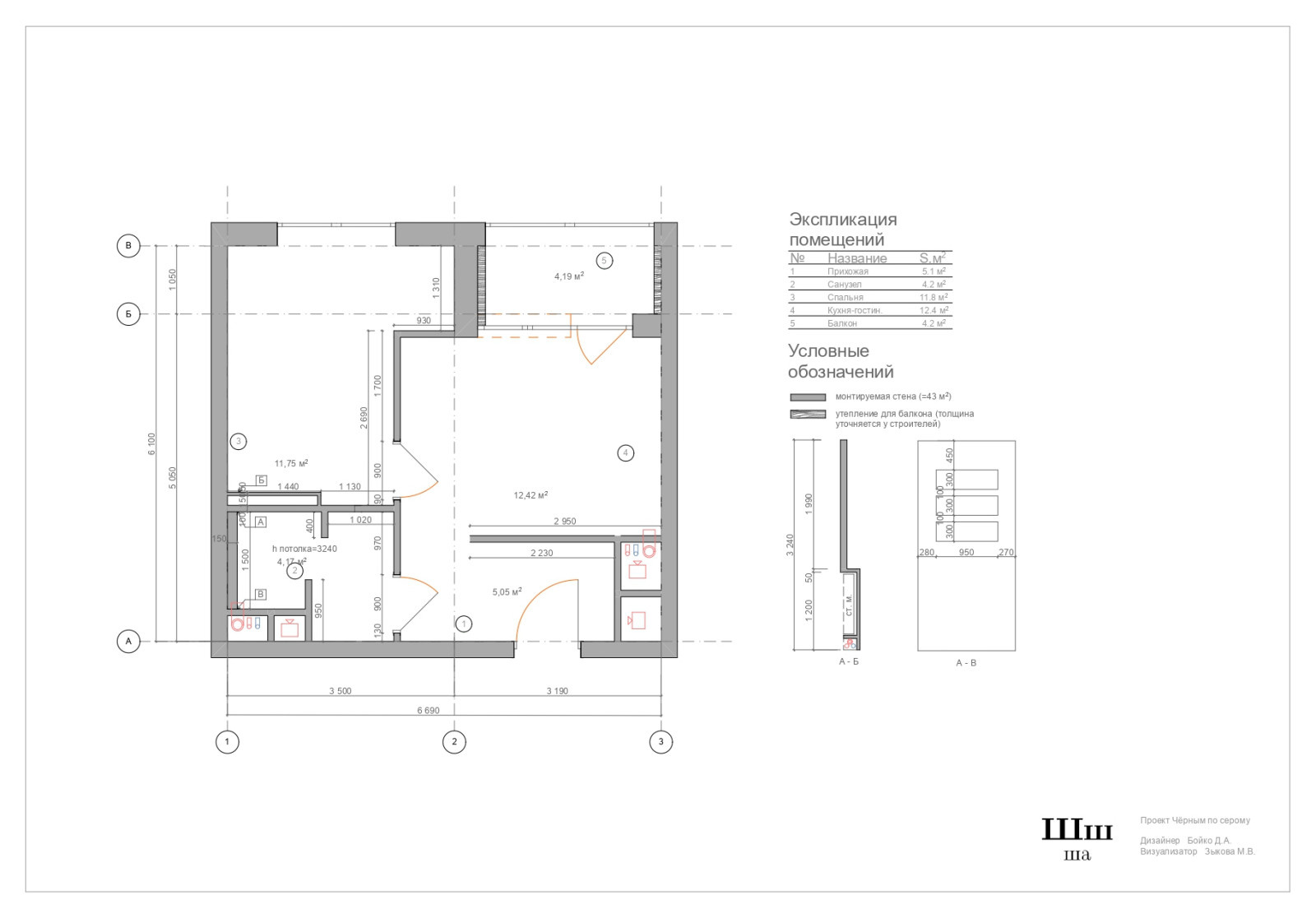
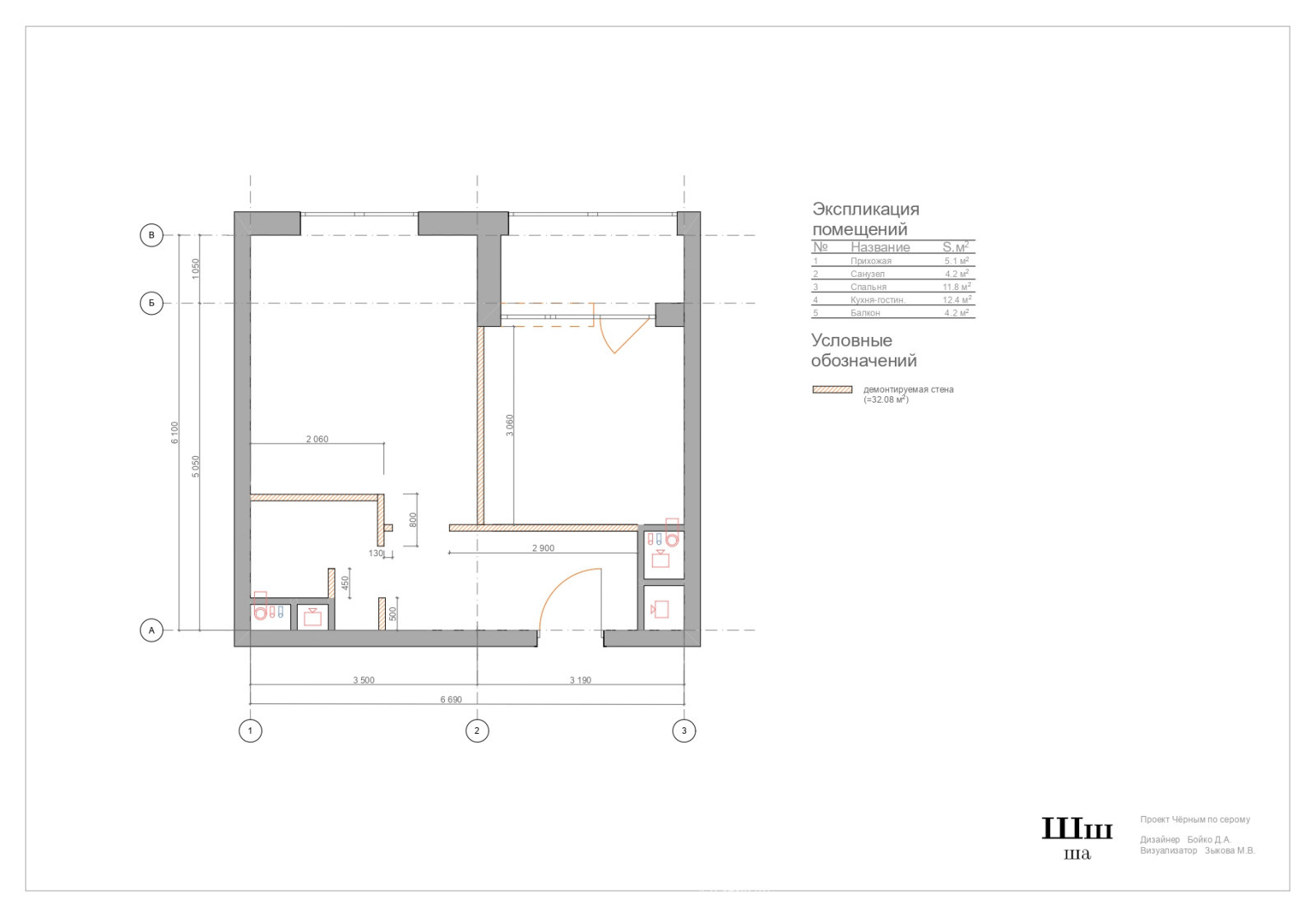
Компактная квартира в новостройке для молодой девушки. В квартире важно предусмотреть просторную гардеробную для хранения . вещей, а приоритет отдать зоне гостиной, организовав комфортное место для отдыха и встреч с друзьями.
Год реализации: 2021
Стоимость проектирования: 34 999 ₽
г. Екатеринбург
15 фотографий














