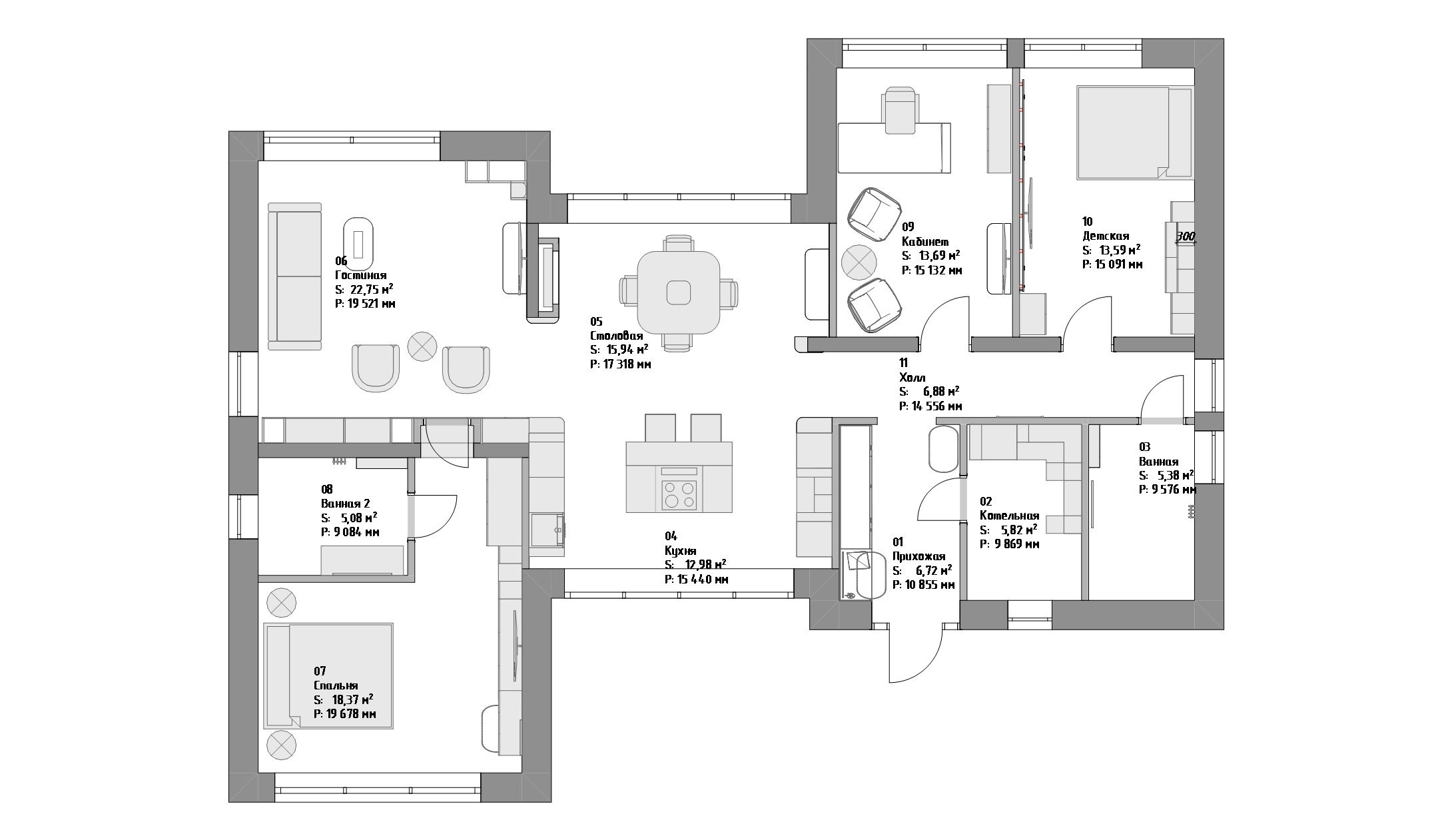
Частный дом в Краснодарском крае, г. Сочи
Загородный дом для семьи из трёх человек . Основное пожелание было создать уютную атмосферу с использованием натуральных текстур.
Год реализации: 2025
Стоимость проектирования: 455 000 ₽
Стиль: Современный
г Москва
44 фотографии












































