Частная резиденция на Волге
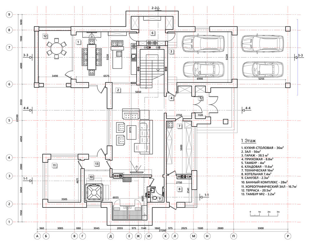
Резиденция спроектированная в стиле архитектора Фрэнка Ллоида Райта. Дом представляет собой сложный многосоставной объём, распластанный в горизонтальной плоскости с широкими нависающими свесами кровли, под которыми объединены многие функции, призванные сделать пребывание владельцев особняка максимально комфортабельными. . . Комфорт начинается уже с двух гостевых парковок, навеса для двух автомобилей и гаражом. Внутренняя структура дома сконцентрирована вокруг просторной гостиной с камином и диванной группой, видом на участок с ландшафтным дизайном и реку Волгу через большое панорамное окно. Из гостиной, соединённой с кухней, можно выйти на летнюю террасу с бассейном и крытую террасу для летнего времяпрепровождения в тени. Также на первом этаже есть небольшой spa комплекс, зал для хореографии, котельная и складское помещение. Все жилые комнаты расположены на втором этаже, это: мастер спальня с большой гардеробной и санузлом, и две детские комнаты также имеющие все необходимые удобства. . . Архитектурное решение выполнено в сдержанном классическом стиле с некоторыми проникающими современными элементами. Облик здания фундаментален, создан с использованием качественных строительных и отделочных материалов, таких как: керамический клинкер, отделка цоколя натуральным камнем и современным покрытием кровли, устойчивым к внешним воздействия окружающей среды. . . При всей фундаментальности здание кажется лёгким, за счёт больших площадей остекления. Такое решение выбрано намеренно, так как здание находится в непосредственной близости с береговой линией реки Волга, и кроме того, что мы визуально облегчили внешний вид, мы максимально открыли обзор практически из всех помещений.
7 фотографий








