Бодрящий интерьер
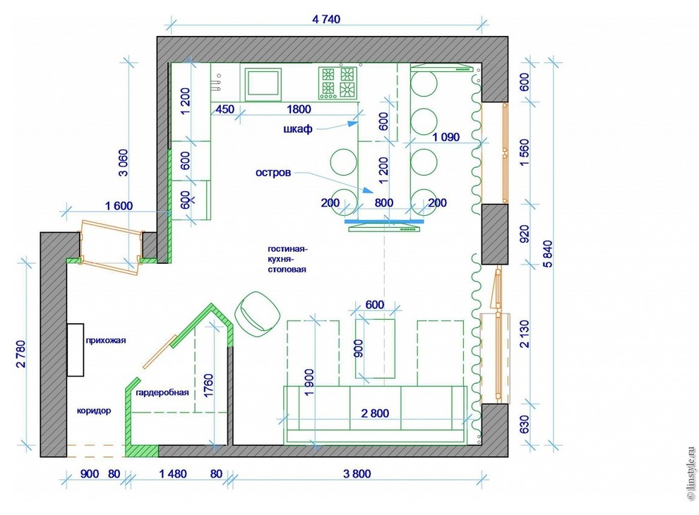
Задача дизайн-проекта: оформить большую гостиную, найти место для гардеробной, а также придумать интересное оформление из искусственного камня.
Год реализации: 2017
г. Волгоград
7 фотографий
Задача дизайн-проекта: оформить большую гостиную, найти место для гардеробной, а также придумать интересное оформление из искусственного камня.
7 фотографий
