Беседка
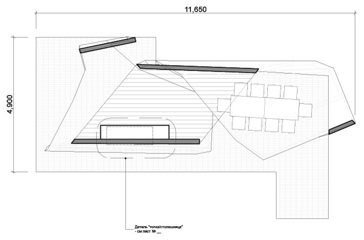
Проект был разработан специально для популярного телешоу «Дачный ответ», в котором для владельцев загородных домов или дач, согласившихся на эксперимент, архитекторы делают перепланировку какой-либо части их приусадебного хозяйства. . . В данном, случае в качестве объекта был выбран довольно обычный дачный участок, с садовыми деревьями, принадлежащий капитану яхты, который очень любит собирать семью и многочисленных друзей для приготовления блюд на мангале. . . Нам хотелось создать сложную динамичную конструкцию, которая бы не только выполняла свои функции — беседки и площадки для застолий, но и не нарушала сложившийся контекст участка. Несмотря на то, что наш проект представляет собой довольно сложную структуру, состоящую из 14 плоских сегментов, мы использовали нейтральные цвета и натуральное дерево лиственницы. Это помогает, с одной стороны, эффектно подать объект и выделить его конструкционные особенности, а с другой — не вырывать его из сложившегося дачного контекста, растворить в зелени сада, чтобы он радовал глаз, но ни в коем случае не резал. . . Наше бюро разработало небольшую самонесущую конструкцию состоящую из четырнадцати плоскостей, выполненных в дереве лиственницы, тонированной в белый цвет. В спиралевидной структуре, напоминающей морскую волну, при этом нашлось место для застолий и в отдалении во второй части беседки отделенной небольшим воздушным «зазором», своеобразной щелью, разместили выложенный из кирпича мангал. . . Прозрачность и открытость этой беседки, согласно нашего замысла, должна способствовать общению человека и природы, тем более, что ее окружают фруктовые деревья, каждую осень дающие обильный урожай и зеленый газон. Нейтральные цвета беседки тонут в интенсивных цветах сада — от зеленого летом, до желтого и красного осенью, и примеряют довольно сложную агрессивную форму с мирной пасторалью Подмосковья, давая ей спокойно существовать в контексте участка.
19 фотографий




















