Белый дом в Ямном
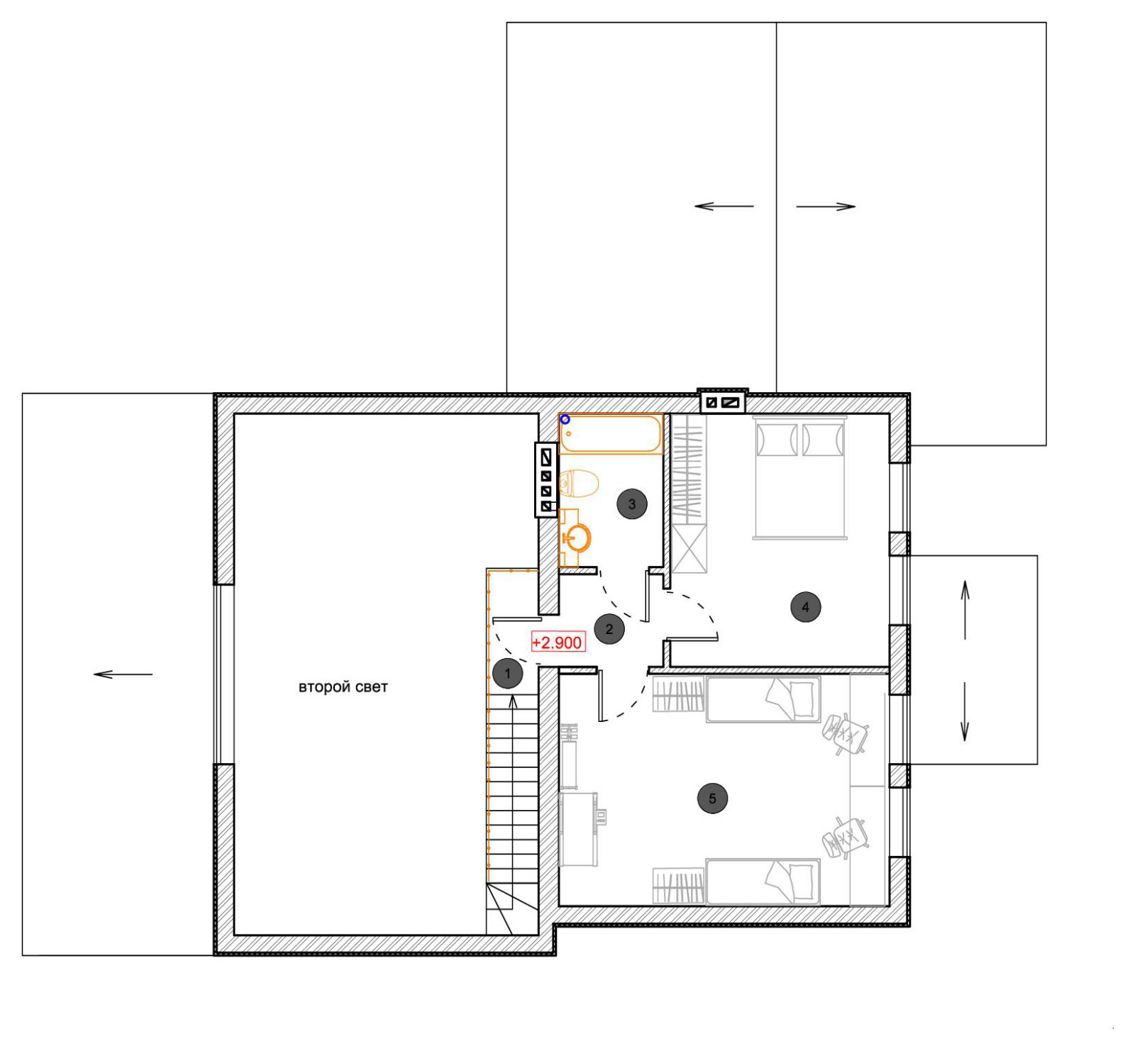
Дом для молодой семьи. Дом разделен на два корпуса: двухсветная кухня-гостинная и жилая часть. На первом этаже располагается: крыльцо, тамбур, холл, кухня-гостиная, санузел, котельная, . кабинет, гардеробная, терраса и гараж. . На втором этаже: балкон, холл, санузел, спальня, детская спальня. Лестница связывает 1,2 этажи. Общая площадь дома с учетом террасы, навеса для машин и крыльца 216 кв.м . Отделка: штукатурка с покраской, планкен
Год реализации: 2021
Стоимость проектирования: 34 999 ₽
8 фотографий








