logo

Базовый дизайн-проект комнаты

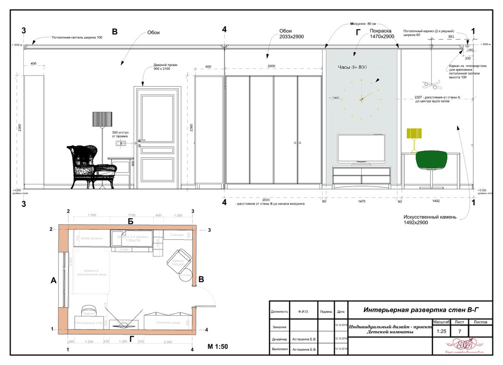
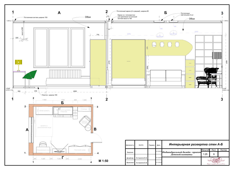
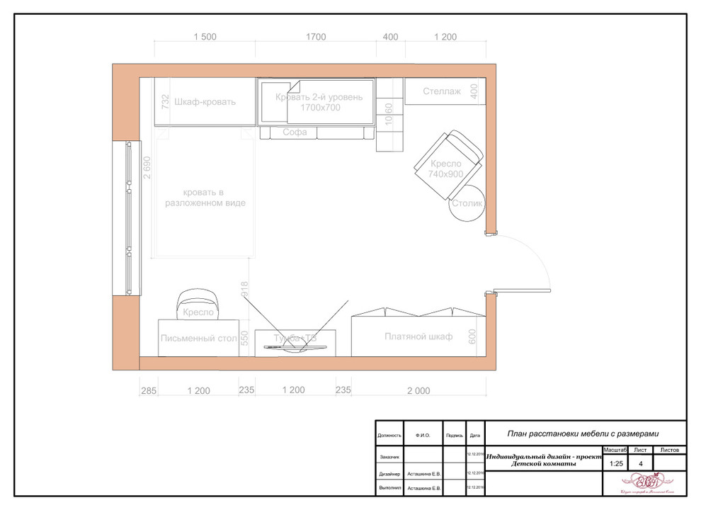
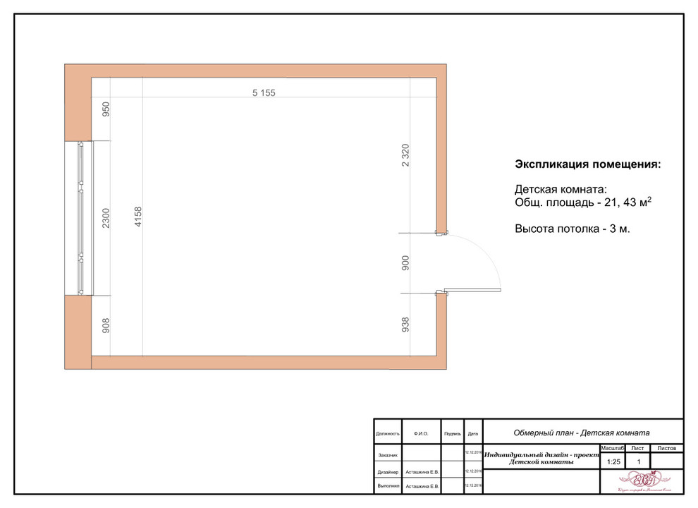
Дизайн интерьера комнаты для 2-х мальчиков.

Год реализации: 2017
Стоимость проектирования: 34 999
г. Москва
photo

9 фотографий

Базовый дизайн-проект комнаты
Базовый дизайн-проект комнаты
Базовый дизайн-проект комнаты
Базовый дизайн-проект комнаты
Базовый дизайн-проект комнаты
Базовый дизайн-проект комнаты
Базовый дизайн-проект комнаты
Базовый дизайн-проект комнаты
Базовый дизайн-проект комнаты
Базовый дизайн-проект комнаты
Базовый дизайн-проект комнаты
Базовый дизайн-проект комнаты
Базовый дизайн-проект комнаты
Базовый дизайн-проект комнаты
Базовый дизайн-проект комнаты
Базовый дизайн-проект комнаты
Базовый дизайн-проект комнаты
Базовый дизайн-проект комнаты
Фоновое изображение профиля Елена Асташкина
Фото профиля Елена Асташкина

Елена Асташкина

Дизайнеры интерьера

Контакты

г. Москва