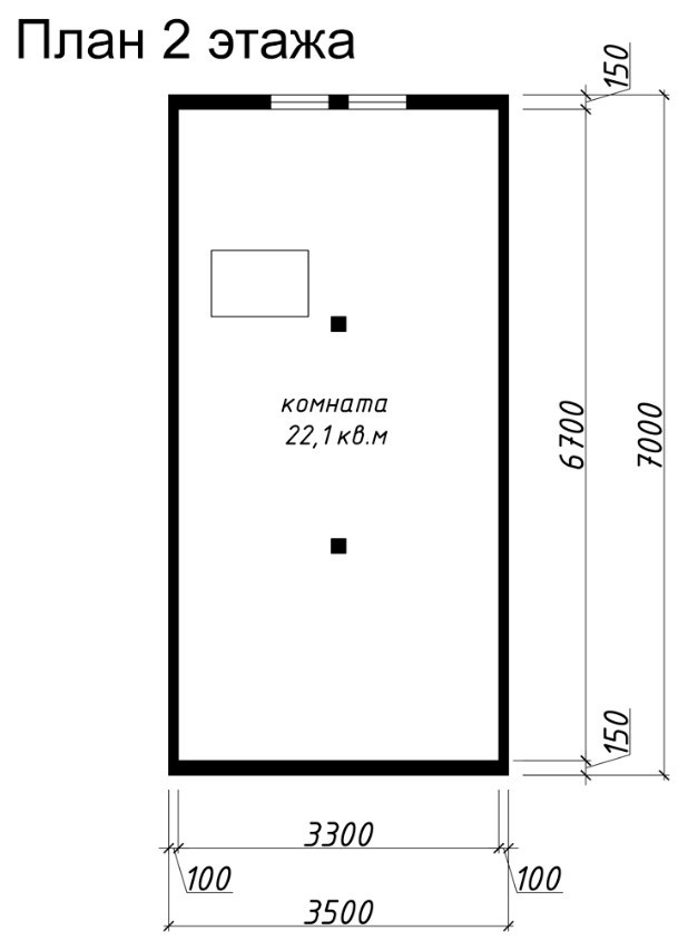
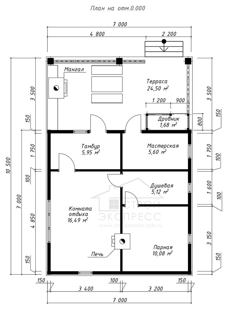
Профиль пользователяБаня ВсеволожскГод реализации: 2018Стоимость проектирования: 2 450 000 ₽г. Всеволожск9 фотографийПоделитьсяСохранитьВ фотопотокеВ фотопотокеБаня ВсеволожскПоделитьсяСохранитьВ фотопотокеВ фотопотокеБаня ВсеволожскПоделитьсяСохранитьВ фотопотокеВ фотопотокеБаня ВсеволожскПоделитьсяСохранитьВ фотопотокеВ фотопотокеБаня ВсеволожскПоделитьсяСохранитьВ фотопотокеВ фотопотокеБаня ВсеволожскПоделитьсяСохранитьБаня ВсеволожскПоделитьсяСохранитьБаня ВсеволожскПоделитьсяСохранитьБаня ВсеволожскПоделитьсяСохранитьБаня ВсеволожскПоделитьсяСохранить