Баня ВЕРЕЯ
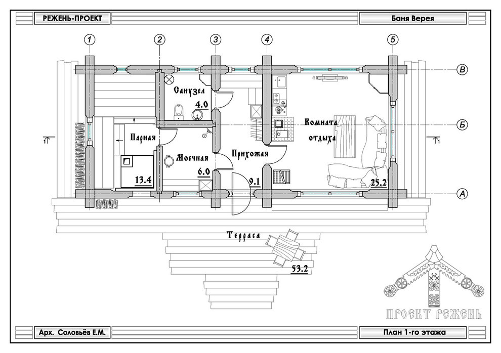
Баня «Верея». . . В ней органично сочетаются традиционные технологии наших предков и современные строительные возможности, обеспечивающие все современные требования к долговечности, энергоэффективности, экономичности и комфорта. . . Сруб возведен из кедровых брёвен диаметром 38-42 см. С такими параметрами энергозатраты на отопление максимально минимизированы. . . Парная рассчитана на одновременное пребывание 8 человек. Полки здесь сделаны максимально удобными. Банная печь, довольно внушительных размеров, обладает широким диапазоном возможностей для экспериментов. . . Изюминкой является антресольный этаж, на котором, как показала практика, может разместиться до 15 человек. . . Несмотря на такие архаичные внешние атрибуты, как охлупень, причелины, полотенца, курицы, потоки, данная баня является абсолютно современным зданием, с точки зрения как строительных, так и инженерных решений. . . Реализацией данного объекта занималась мастерская Петра Карелина - настоящие мастера традиционного русского деревянного зодчества.
8 фотографий








