Баня в Истринских Холмах (малая)
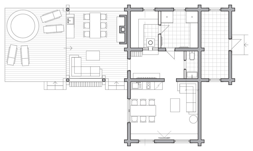
Общая площадь: 109 м2 . Площадь помещений: 56 м2 . Этажей: 1 . Срок строительства: 4-5 месяцев . Гарантия: 25 лет . Архитектор: Виталий Ангаткин
Год реализации: 2016
30 фотографий
Общая площадь: 109 м2 . Площадь помещений: 56 м2 . Этажей: 1 . Срок строительства: 4-5 месяцев . Гарантия: 25 лет . Архитектор: Виталий Ангаткин
30 фотографий
