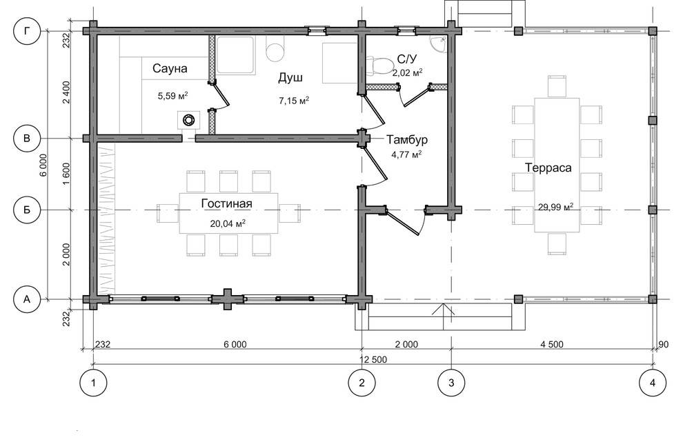
Профиль пользователяБаня ШалеГод реализации: 20184 фотографииПоделитьсяСохранитьБаня ШалеПоделитьсяСохранитьБаня ШалеПоделитьсяСохранитьБаня ШалеПоделитьсяСохранитьБаня ШалеПоделитьсяСохранить