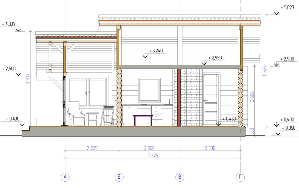
Баня с верандой в н.п. Кульсеитово
Год реализации: 2020
Стоимость проектирования: 34 999 ₽
г. поселок Кульсеитово (Казань)
10 фотографий
10 фотографий

1К квартира в ЖК LEVEL Нагатинская. Москва 2024
Жилой дом с мансардой, пристроенным банным комплексом и гаражным комплексом
Жилой дом с гаражным комплексом
Эскизные предложения жилого дома на Серебрянической набережной. Москва
Дизайн-проект интерьеров школы на 825 мест
Реконструкция фасадов 2-х этажного жилого дома
Интерьер бильярдной комнаты в жилом доме. Пос. Казанская Усадьба. Казань