Баня Пушкинский лес
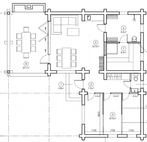
Общая площадь: 96,3 м2 . Площадь помещений: 71,5 м2 . Этажей: 1 . Диаметр бревна: 25 см . Срок строительства: 3-4 месяца . Гарантия: 25 лет . Архитектор: Александр Лебедев
Год реализации: 2021
24 фотографии
Общая площадь: 96,3 м2 . Площадь помещений: 71,5 м2 . Этажей: 1 . Диаметр бревна: 25 см . Срок строительства: 3-4 месяца . Гарантия: 25 лет . Архитектор: Александр Лебедев
24 фотографии
