logo
Войти
Профиль пользователя

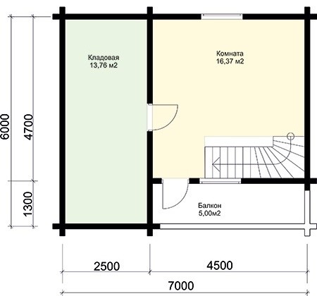
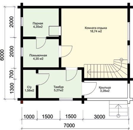
Баня 6х7 проект "Наяда"

Год реализации: 2016
photo

4 фотографии

Баня 6х7 проект "Наяда"
Баня 6х7 проект "Наяда"
Баня 6х7 проект "Наяда"
Баня 6х7 проект "Наяда"
Баня 6х7 проект "Наяда"
Баня 6х7 проект "Наяда"
Баня 6х7 проект "Наяда"
Баня 6х7 проект "Наяда"
Фоновое изображение профиля Эдуард Румянцев
Фото профиля Эдуард Румянцев

Эдуард РумянцевЭдуард Румянцев

5

1 отзыв

Проектирование и строительство

Контакты

г. Москва

Все проекты

"Истра" - проект дома из бруса 6х6 с террасой 6х3

Проект дома из бруса в стиле шале "Альпы"

Баня 5х7, проект "Даная"

Дом из бруса, проект "КупцовЪ Дом"

Дом из бруса на две семьи, проект "Дуэт"

Дом из бруса с большой террасой, проект "ПатриархЪ"

Смотреть все
Флатика
О насМы в прессеFAQКонтактыМатериалы

«Флатика» в соцсетях:

ПинтерестМаксВкДзенTelegramTelegram Pro
Pro
Instagram

Продукт компании Meta, признанной экстремистской организацией, деятельность которой запрещена в РФ

Пользовательское соглашениеПолитика в отношении обработки персональных данныхКарта сайта

© 2026 Flatica

ФотоЭкспертыСтатьи