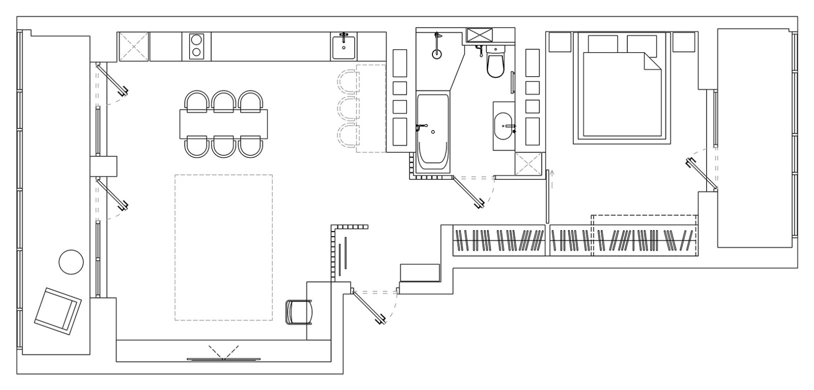
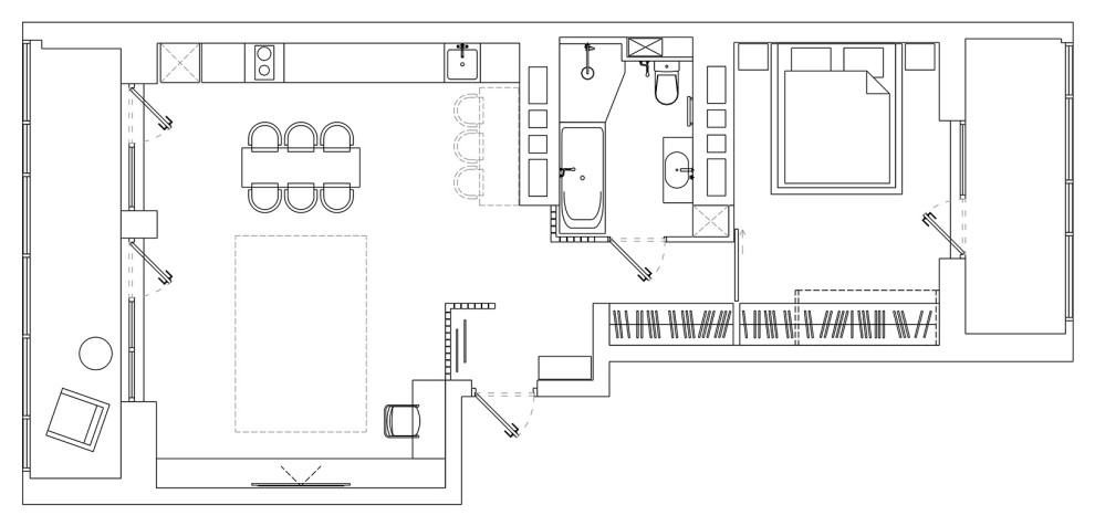
Ascetic traveler | 81 кв. м | Проект квартиры в стиле минимализм
Что такое уют и комфорт? Каждый определяет эти понятия по-своему. При четком понимании индивидуальных требований к жилищу можно создать обстановку, которая будет идеально подходить для конкретного человека. . . В этой квартире нет таких привычных предметов мебели, как диван в гостиной и обеденный стол в кухонной зоне. У заказчика было ясное понимание, что он хотел бы видеть у себя дома, а от чего готов был принципиально отказаться в соответствии со своим стилем жизни. С учетом поставленных задач удалось создать пространство, функциональные решения которого сформировали комфорт индивидуализма.
Год реализации: 2020
г. Москва
11 фотографий












