Arbor bbq. Беседка с панорамным остеклением.
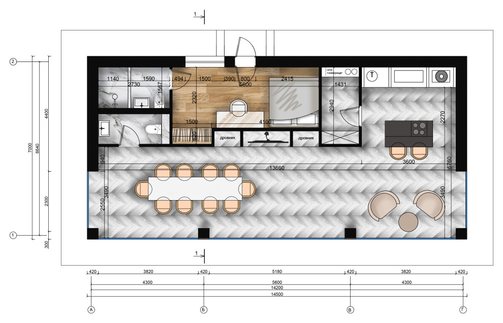
Беседка с панорамным остеклением, скатной крышей, большой печью-мангалом и комнатой для персонала с отдельным входом. Эту бесеседку можно смело назвать летним домиком. Она спроектирована по заданию заказчика, для приема большого количества гостей, застолья на 12-15 человек. Также важным условием было сделать комнату для повара, с отдельным входом. на плане видно, что у него есть собственный санузел, место для отдыха, кровать, шкаф - все необходимое, для недолгого пребывания. Само здание представляет собой капитальное строение, на ленточном фундаменте. Стены и колонны - газоблоки, крыша - классическая скатная деревянная конструкция. Светопрозрачные стены - сдвижные стеклянные перегородки. в жару, чтобы они не работали, как парник, все перегородки сдвигаются, и беседка превращается в павильон на открытом воздухе.
15 фотографий
















