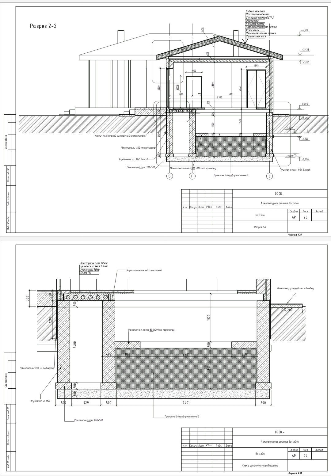
Профиль пользователяАР бассейна. Новоподклетное.Год реализации: 2026г Воронеж3 фотографии ПоделитьсяАР бассейна. Новоподклетное.ПоделитьсяСохранитьАР бассейна. Новоподклетное.ПоделитьсяСохранитьАР бассейна. Новоподклетное.ПоделитьсяСохранить