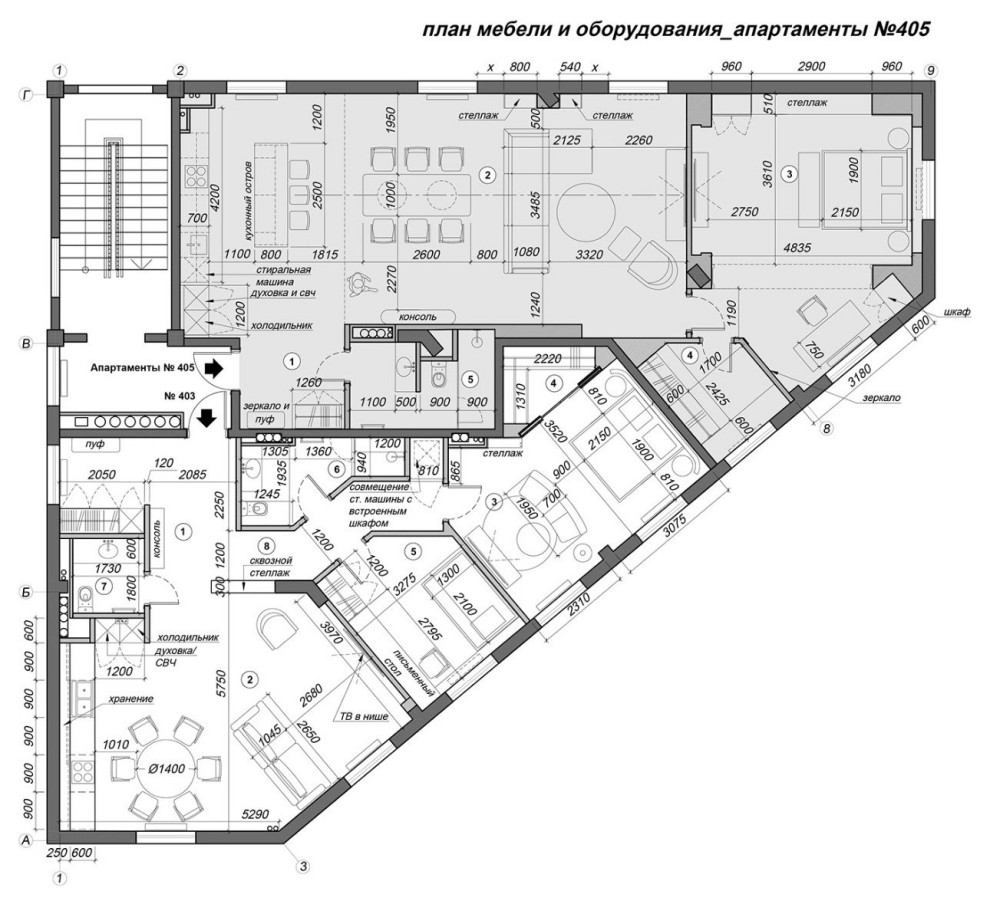
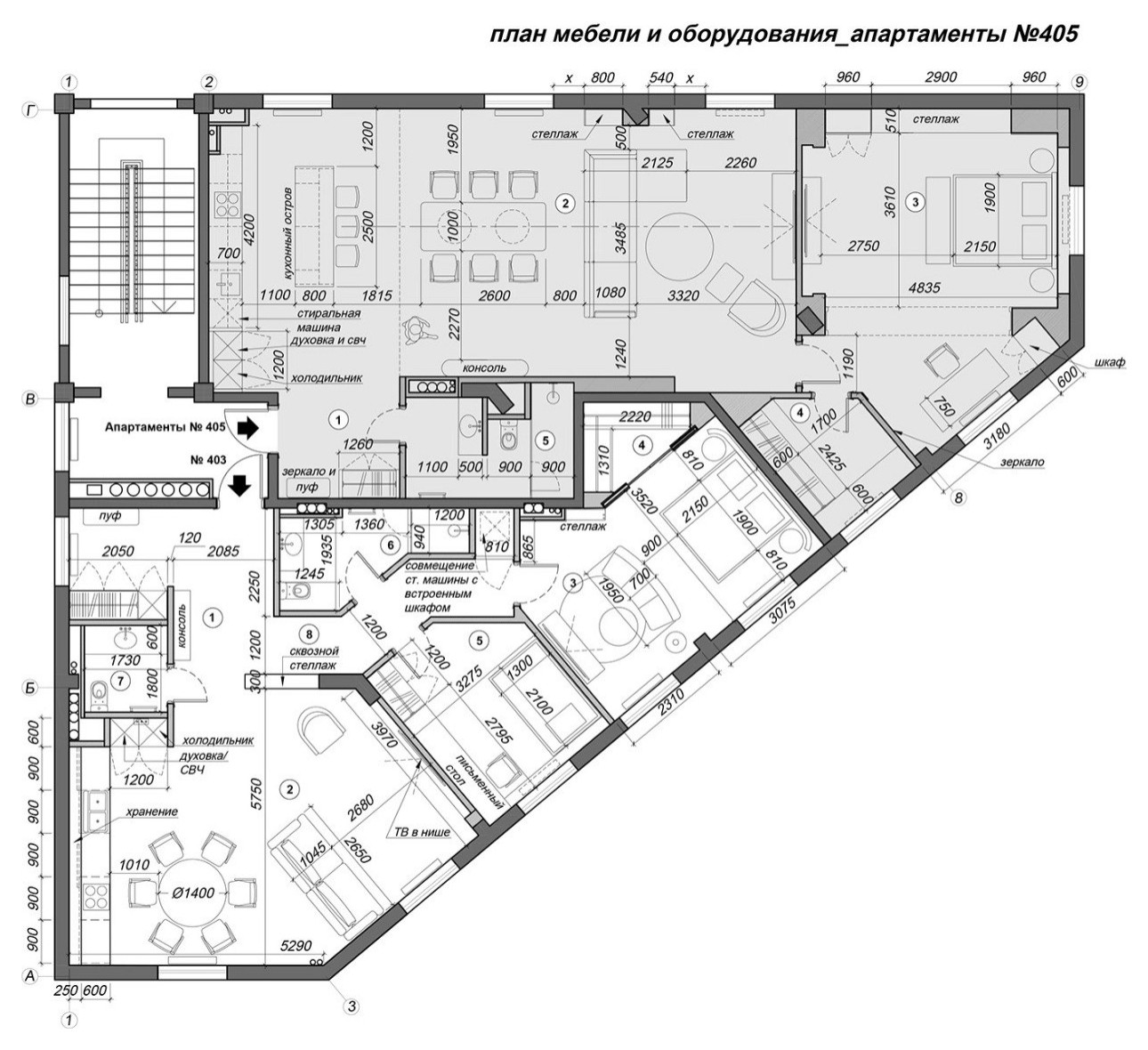
Апартаменты в Севастополе под сдачу
Апартаменты в Севастополе. Проект выполнен в scetch up подаче с коллажом и разработкой планировочного решения. . Задача стояла сделать стильно и удобно для проживания гостей. Апартаменты предназначаются для сдачи людям, которые приехали отдыхать.
Стоимость проектирования: 275 000 ₽
г. Севастополь
7 фотографий








