Апартаменты на берегу Адриатического моря
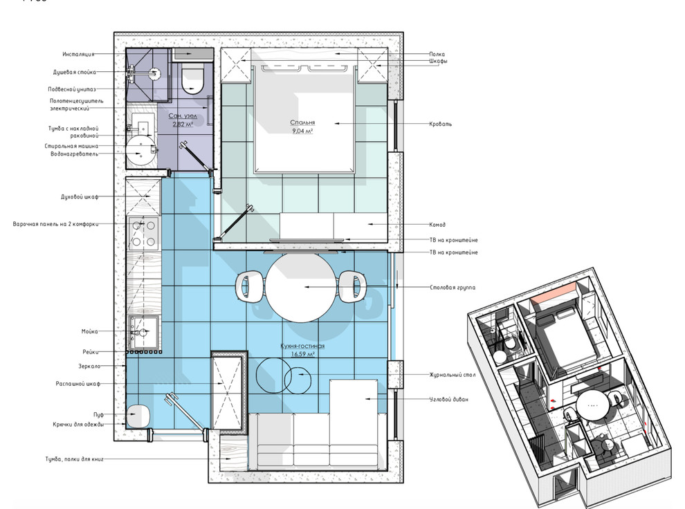
Белая и легкая кухня в скандинавкой стилистике. Самое главное в кухне это ее функциональность и удобство. Так как необходимость ее использования только в летний туристический сезон, мы запроектировали ее только самым необходимым. . . Самое интересное что было сделано в этих апартаментах- это предусмотрели "грязную зону" при входе и запроектировали встроенный шкаф для одежды. в первоначальном проекте не было ни какой зоны прихожей а только открытое пространство. Не хотелось нам , чтобы песок с обуви разносился по всей квартире.
Год реализации: 2019
Стоимость проектирования: 34 999 ₽
15 фотографий
















