Апартаменты для молодой девушки в 100 м²
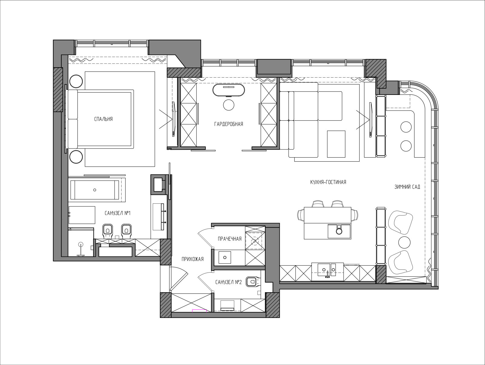
Заказчик: молодая девушка . . Местоположение: г. Москва, ЖК «ВТБ Арена Парк» . . Тип помещения: апартаменты . . Площадь проекта: 100 кв.м. . . Описание проекта: Апартаменты предназначены для проживания, преимущественно одного человека – молодой девушки. Именно этим обусловлена такая свободная планировка. . Также среди жильцов есть кот, ему уделено особое внимание, есть место для кормушки с поилкой, а также место для камеры, через которую можно следить за исправностью "кошачьей" техники. . . Можно сказать нам повезло с изначальной планировкой, это было единое пространство без перегородок. . . В данном интерьере мы использовали концепцию перетекающих пространств. Помещения соединяются друг с другом и имеют лишь условные границы. . . Прихожая, кухня, гостиная, зимний сад (в котором располагаются бар и зона для чтения) это единое пространство. . Зона отдыха, в которой располагаются бар и зона для чтения, отделена лишь светопрозрачными стеллажами для растений. . . На входе в спальню есть задвижная дверь, и когда она задвинута в стену, создается впечатление что двери и вовсе нет, а все потому что она задвигается заподлицо со стеной и имеет высоту от пола до потолка. . Заходя в спальню мы не видим жестких границ между мастер-санузлом и спальней, их разделяет лишь перегородка которая располагается на всю ширину помещения и идет от пола до потолка. . На входе в гардеробную комнату стоят раздвижные двери выполненные из матового стекла через которое проникает свет от окна, таким образом мы можем закрыть двери в гардеробную но свет от окна будет проникать в темную часть квартиры. При открытых дверях гардеробная становиться одним целым с зоной прихожей и примыкающих к ней помещений. . . В зоне прихожей окон нет, поэтому мы решили сделать на одной из стен, зеркало от пола до потолка и шириной практически во всю стену. . Зеркало в прихожей располагается напротив панорамного окна зимнего сада и отражает его, тем самым у нас в прихожей визуально появилось окно. . . В процессе работы возникало множество задач, но объединяющей идеей было создание цельного, не загроможденного множеством перегородок и стен пространства, не только комфортного для жизни но и такого, в котором вы бы постоянно открывали для себя что-то новое. . . В качестве отделочных материалов мы использовали, дубовую паркетную доску, крупноформатный керамогранит 2780х1200 мм, стеновые панели из МДФ. . . Отдельной сложной задачей для нас был подъем на 13-й этаж всего заказанного крупноформатного керамогранита. В грузовой лифт он не помещался, поднять на кране и занести его через окно также не представлялось возможным и поэтому его поднимали вручную по лестнице на 13-й этаж целая команда строителей. Поднимали по частям, с перерывами, но зато в итоге не разбили не единой плитки. . . На стенах использовали только покраску за исключением двух стен в гардеробной, там мы использовали обои имитирующие стеновые тканевые панели. . . Интерьер выполнен в черно-белой гамме, с яркими цветовыми акцентами, это оранжевый цвет в санузлах и спальне, и синий цвет стульев на кухне. Практически все стены имеют белый цвет что создает эффект воздушности. . Этот эффект мы старались поддержать даже в мелочах, например обеденный стол имеет лишь одну стеклянную опору. . . Мебель индивидуального изготовления максимально функциональна и не сильно выделяется по цвету. В тоже время в зоне кухни и в спальне мы добавили яркие акценты. . . В отдельностоящей мебели предпочтение отдавалось итальянским производителям, а в мебели индивидуального изготовления мы работали с российским производством. . . В гардеробной комнате туалетный столик изготавливался на заказ, отдельным пожеланием от заказчицы, была просьба сделать зеркало с подсветкой, но в тоже время мы не хотели тянуть провод от него, и поэтому сделали подсветку для зеркала от аккумулятора, который без проблем можно зарядить от расположенной радом внутрипольной розетки. . . А в зоне зимнего сада удачно вписался журнальный столик спроектированный нами по индивидуальным эскизам. . . В процессе работы мы использовали достаточно много технологических решений. . . Перегородка отделяющая спальню от ванной комнаты выполнена из смарт-стекла, которое можно делать прозрачным или матовым по своему усмотрению, и при включенном режиме прозрачности, спальня и мастер-санузел визуально становятся единым помещением. Таким образом у нас сохраняется общая идея открытого и не загроможденного пространства. А если вдруг нужно уединиться в мастер-санузле, то можно включить режим матового стекла и пространство будет смотреться отдельной комнатой. . . В санузлах и в зоне кухни мы использовали скрытые вентиляционные решетки, таким образом они не привлекают лишнего внимания, но и в тоже время выполняют свою прямую функцию. . . Похожий подход у нас был и в проектировании освещения, да, у нас есть и люстры и подвесные светильники в проекте, но основные светильники мы также сделали встроенными без лишних рамок и обрамлений. . . В кухонном острове например мы не очень хотели делать обычные розетки с рамками которые бы сильно выделялись, и поэтому специально для кухонного острова мы разработали специальные интегрированные розетки. . . Встроенными карнизами с электромотором сейчас редко кого удивишь, но в данном пространстве с большим панорамным остеклением они придают дополнительный комфорт. . . Телевизорам также было уделено отдельное внимание, телевизор в гостиной мы подбирали с таким расчетом, чтобы он смотрелся с двух сторон одинаково хорошо, а телевизор в спальне подобрали максимально плоским, имитирующим картину в выключенном состоянии. . . Также в ванной комнате при спальне мы предусмотрели дополнительный фильтр для воды, чтобы можно было умываться фильтрованной водой. . . Нам удалось реализовать все заложенные в проект идеи, а в некоторых случаях даже усовершенствовать их. . . Интересно теперь вспоминать процесс реализации интерьера на финальной стадии, когда уже доделывалась мебель и в этот момент нам привезли хозяйского кота и оставили его там жить. Отдельной задачей для нас было проследить за ним, чтобы в процессе финальных доставок и монтажей его никто не задел, он не убежал и чтобы у него не было сильного стресса от происходящего.
23 фотографии























