Amodent Dental Clinic
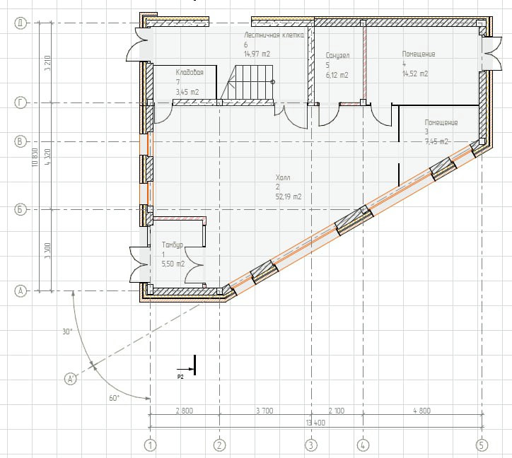
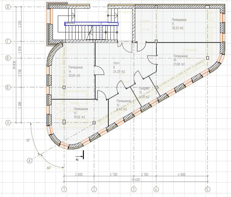
Проект здания бытового обслуживания под функцию стоматологической клиники, Общая площадь - 220 кв.м. . . Конструктивный тип здания - Каркас. . Основание фундамента выполнить в соответствии с расчётом и геологии места строительства. . Несущими конструкциями здания являются колонны 300 мм х 300мм. . Отделка наружных стен: ригельный кирпич и фиброцементные панели. . Фундамент дома - Монолитный железобетонный. . Кровля - Плоская эксплуатируемая. . Водосточная система - внутренний органиозванный водоотвод. . Окна - ПВХ профиль с 2-камерным стеклопакетом. . Стеклянные двери и порталы - Алюминиевые профиль с 2-камерным стеклопакетом.
Год реализации: 2024
Стоимость проектирования: 1 050 000 ₽
11 фотографий












