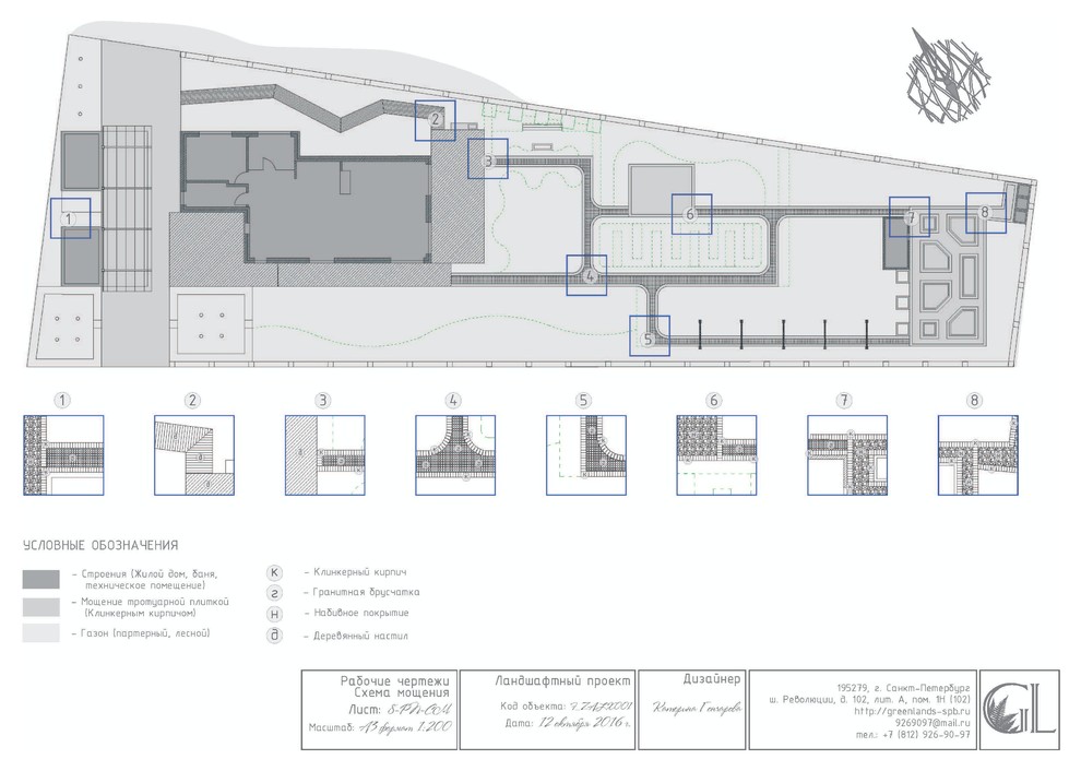
Профиль пользователяАлександровскоеЛандшафтный проект участка для семьи из четырех человек.Год реализации: 2016Стоимость проектирования: 34 999 ₽10 фотографийПоделитьсяСохранитьЭскиз планировочного решения 3. АлександровскоеПоделитьсяСохранитьЭскиз планировочного решения 2. АлександровскоеПоделитьсяСохранитьЭскиз планировочного решения 1. АлександровскоеПоделитьсяСохранитьРабочие сертежи. Дендроплан (деревья). АлександровскоеПоделитьсяСохранитьРабочие чертежи. Схема мощения. АлександровскоеПоделитьсяСохранитьПриложение 2 к Размерам МАФ. АлександровскоеПоделитьсяСохранитьПриложение 1 к Размерам МАФ. АлександровскоеПоделитьсяСохранитьРабочие чертежи. Размеры МАФ. АлександровскоеПоделитьсяСохранитьРабочие чертежи. Забор. АлександровскоеПоделитьсяСохранитьГенеральный план участка. АлександровскоеПоделитьсяСохранить