3х-к-Каменноостровский
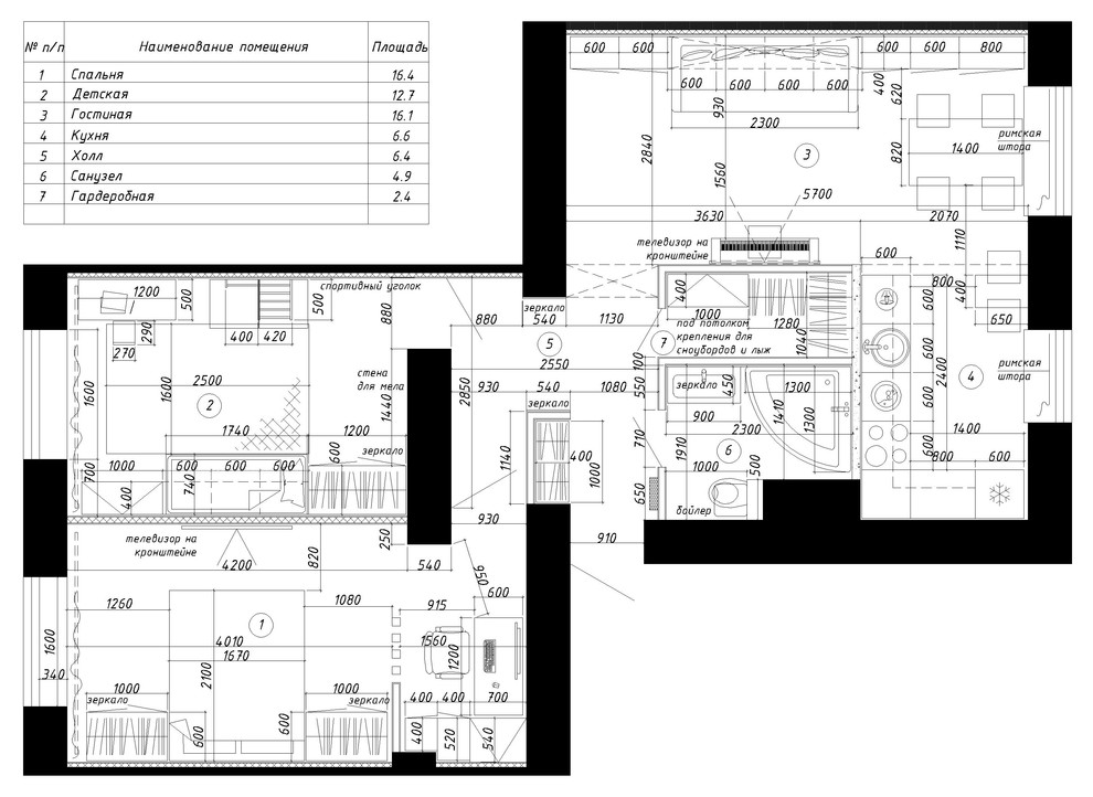
Перепланировка и интерьер 3-х комнатной квартиры в старом фонде для семьи с ребенком. 68 м.
Год реализации: 2017
Стоимость проектирования: 135 000 ₽
г. Санкт-Петербург, 81 Каменноостровский проспект
14 фотографий
Перепланировка и интерьер 3-х комнатной квартиры в старом фонде для семьи с ребенком. 68 м.
14 фотографий
