32 КВАДРАТА. Перепланировка из однушки в двушку в индивидуальном стиле.
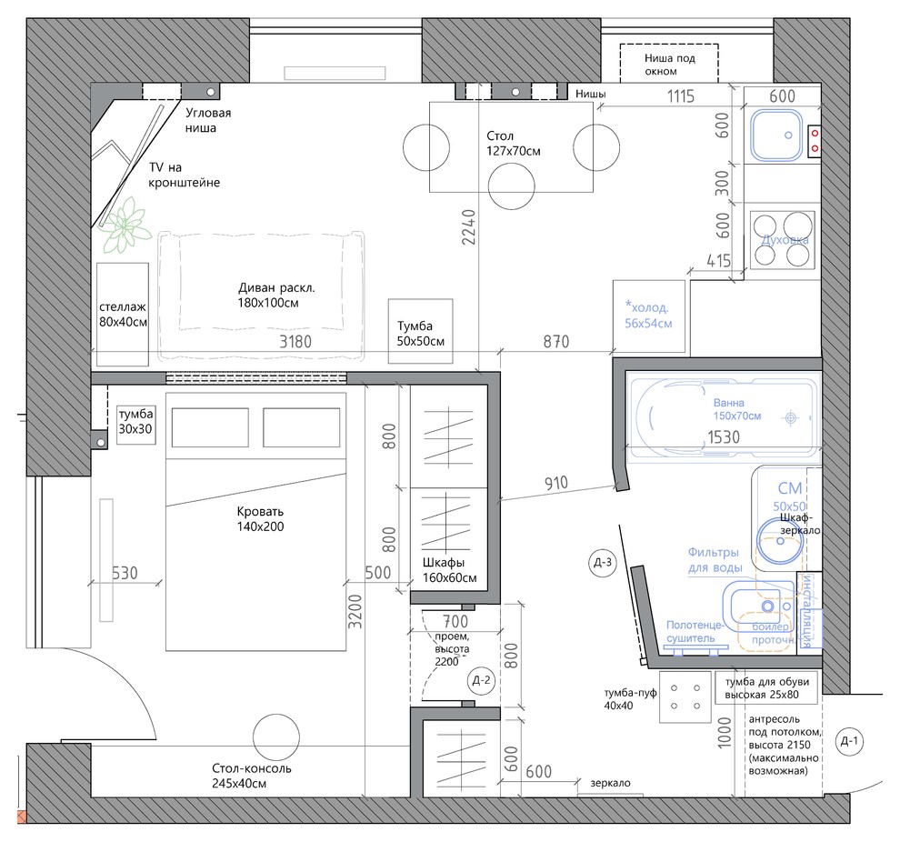
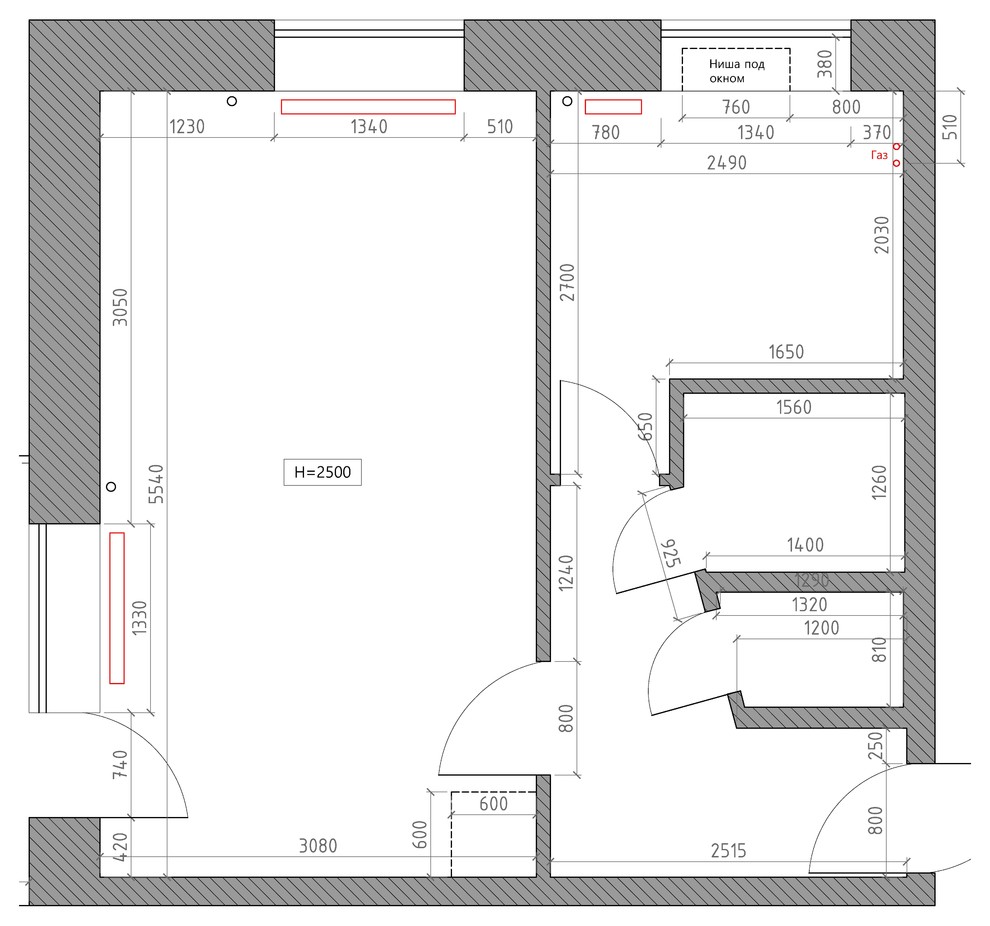
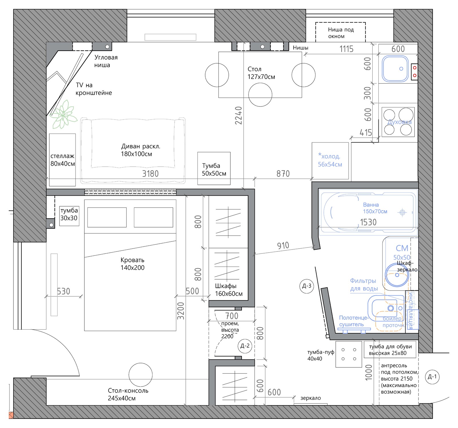
Проект создавался для молодой пары. . 1-комнатную квартиру удалось превратить в уютную компактную двушку. Вся стилистика квартиры основана на частично выбранных материалах заказчиками - темная морская мозаика, пробковая и перламутровая мозаики, черный ламинат, галька, двери с ламелями, чугун и.. желание добавить чего-то из лофта - это и задало общий своеобразный индивидуальный стиль. . Гостиная переходит в кухню, разделяет визуально пространство высокий стол из Икеи. По возможности на стенах были добавлены ниши - решили не загромождать пространство стеллажами. Дом подключен к газу, а сама газовая труба замаскирована в конструкции из ГКЛ со съёмным элементом на магните, такое решение можно согласовать и всегда есть доступ к ревизии. . Ванную объединили с туалетом, таким образом из двух крохотных помещений получилось удобное пространство. Стиральная машина вписалась под красивой перламутровой столешницей из мозаики. Сантехнический шкаф скрылся за дверями с ламелями. Также стояла важная задача вписать всю сантехнику под высокий рост жильцов (выше стандартного расположения) и мэйн-куна, самого крупного кота. Кто встречался с данной породой, тот знает, что к организации своего туалета они относятся крайне придирчиво, им нужно много места. Эта своеобразная задача для небольшой ванной была решена успешно ) . В целом от проекта удовольствие получили все. Мне, как дизайнеру, было интересно решать поставленные задачи - небольшие квартиры дают возможность проявить высшие навыки организации пространства, соединить все выбранные материалы в единый стиль, уложится в минимальный бюджет - все это, на мой взгляд, удалось решить на высоком уровне. А благодарность клиентов - самое приятное доказательство успешной работы!
15 фотографий
















