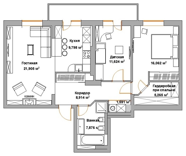
3 комнатная квартира 85,67 м.кв.
Современная трехкомнатная квартира – идеальный вариант для ценителей домашней атмосферы. Выбор цветового решения бежевые и кофейные оттенки. Дизайнеры Усачёва Анна и Макаренко Ирина. . Зона кухни удачно соединяется с просторной гостиной, в которой расположен уютный диван для семейного отдыха. Отдельно выделена зона камина, которая придает дому атмосферу уюта и уединения. . В данном помещении стояла задача разместить отдельную гардеробную, не прибегая к перепланировке квартиры. Решение было принято разместить функциональную гардеробную в спальной комнате. Так же при проектировании учитывался момент детской комнаты, нужно было вписать в интерьер уже имеющуюся мебель.
Год реализации: 2017
10 фотографий











