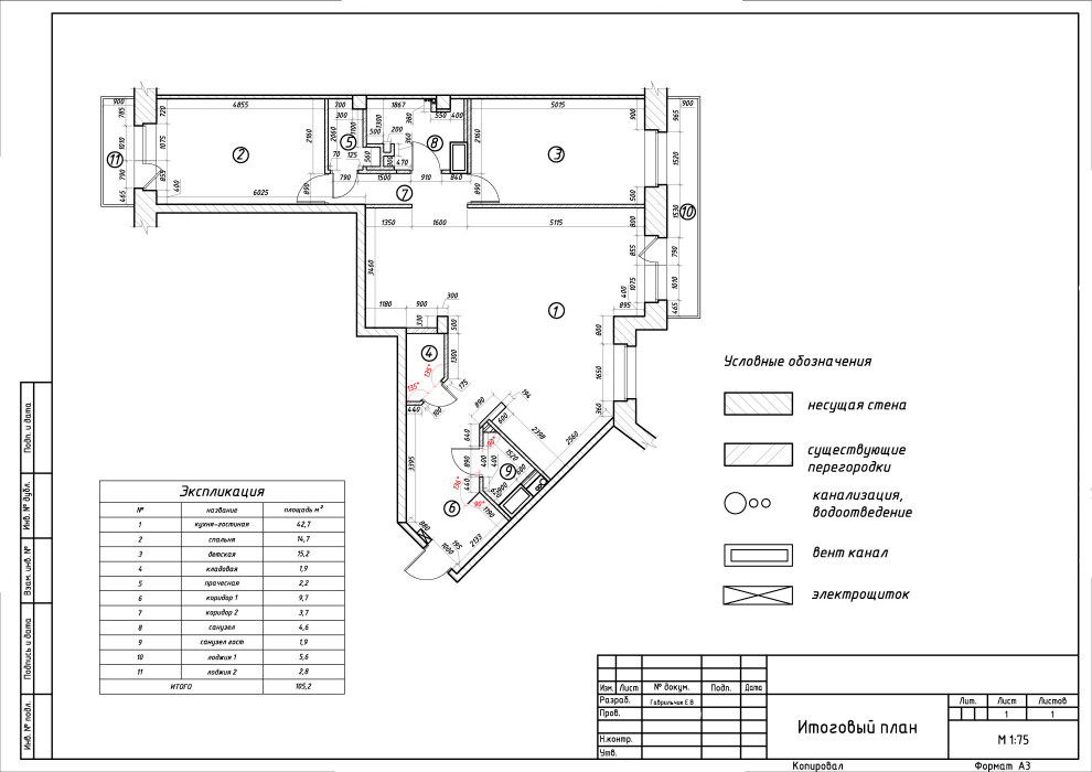
3-х комн кв-ра Ланское шоссе 14. 104 кв.м.
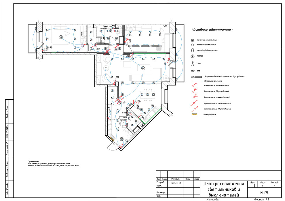
Квартира для молодой семьи. Пожеланиями было современный стиль с элементами Арт Деко. Соединить красоту интерьера и уют в одно целое. Пришлось столкнуться с довольно сложной планировкой квартиры, Множество углов, нет четких границ по помещениям.Но в итоге получилось эргономичное и удобное пространство.
Год реализации: 2020
Стоимость проектирования: 135 000 ₽
г. Санкт-Петербург
6 фотографий







