26 floor
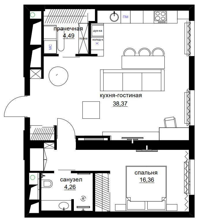
Квартира находится на 26м этаже в одной из высоток Москвы. Заказчик, молодой мужчина и хотел видеть свою квартире в духе "городской берлоги".
Год реализации: 2018
Стоимость проектирования: 5 250 000 ₽
г. Москва
17 фотографий
Квартира находится на 26м этаже в одной из высоток Москвы. Заказчик, молодой мужчина и хотел видеть свою квартире в духе "городской берлоги".
17 фотографий
