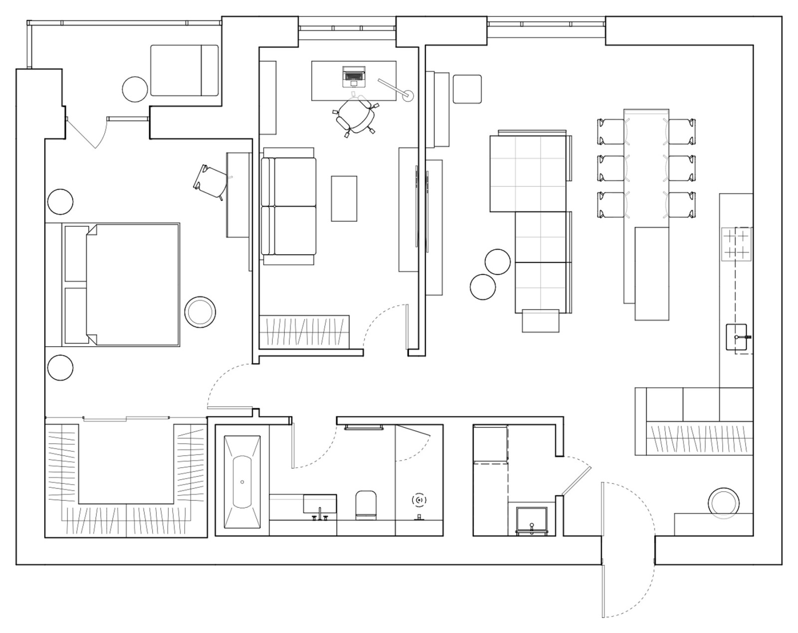
Квартира 105 кв.м для девушки в жилом комплексе "Бульварный Переулок". .
Год реализации: 2023
Стоимость проектирования: 12 250 000 ₽
г. Новосибирск, 95 улица Тимирязева
41 фотография
Квартира 105 кв.м для девушки в жилом комплексе "Бульварный Переулок". .
41 фотография
