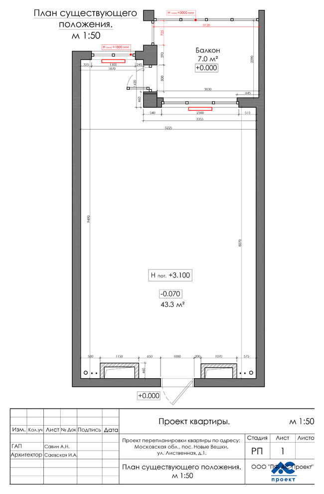
Профиль пользователя1 комнатная квартира превращается в 3-х комнатную!4 фотографииПоделиться проектом1 комн. кв. превращается в 3-х комнатную!СохранитьПоделиться1 комн. кв. превращается в 3-х комнатную!СохранитьПоделиться1 комн. кв. превращается в 3-х комнатную!СохранитьПоделитьсяДо1 комн. кв. превращается в 3-х комнатную!СохранитьПоделиться