планировка

Другие фотографии в проекте ЖК Первый Московский

Вопросы к фото 0

Задайте вопрос

Вам ответят эксперты. Пришлем уведомление, когда вам ответят

Контемпорари, Москва, детская, кухня-гостиная, молдинги, постеры, прихожая, современный интерьер, спальня, стенка с тв, французская ёлочка, французский стиль

Ольга Сахарова

Ольга Сахарова

Дизайнеры интерьера

Смотреть профиль

10

отзывов

5

Рейтинг

ЖК Первый Московский

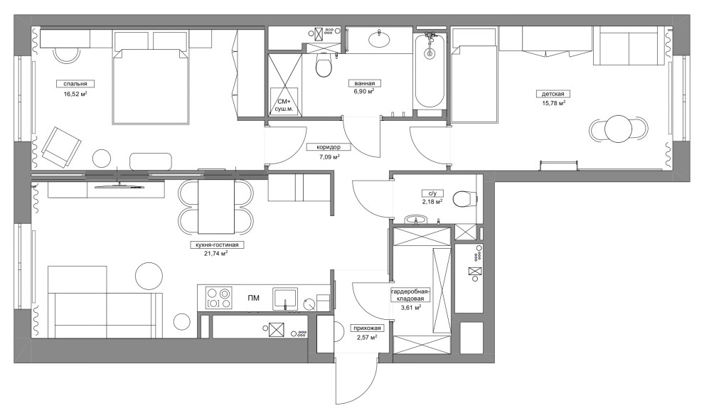
В данной квартире будут проживать трое человек - двое взрослых и один ребенок. . . Хозяева квартиры ценители хорошего вина, поэтому в кухне-гостиной мы предусмотрели высокие полочки для хранения бутылок. Также в кухне-гостиной присутствует большой раскладной стол и диван на три посадочных места. В таком пространстве будет комфортно провести как тихий семейный вечер, так и застолье с гостями. . . Во всех помещениях было предусмотрено масса различных сценариев освещения - торшеры, бра, подсветки, все что необходимо для создания уютной и мягкой атмосферы в доме. . . У входа расположился вместительный гардероб-кладовая, тем самым мы разгрузили визуально от одежды и обуви прихожую, а также предусмотрели пространство для хранения хозяйственного инвентаря и других необходимых вещей. . . В спальне разместился уютный уголок с креслом для отдыха, а также большая макияжная зона. Хозяева не хотели делать мягкое изголовье у кровати, поэтому было принято решение нарастить за изголовьем нишу с подсветкой и покрыть ее декоративной штукатуркой. Получилось довольно необычное, практичное и довольно бюджетное решение. . . В детской самым необычным элементом является peg board - доска с просверленными отверстиями. В эти отверстия вставляются брусочки, а на сами бруски можно поставить полку или повесить игрушку. Такая мобильная стена дает ребенку массу возможностей для творчества и к тому же довольно практична. На месте детского столика в дальнейшем появится полноценное место для учебы. В большом шкафу предусмотрено место для одежды, игрушек и книг. . . В ванной комнате благодаря перепланировке удалось выделить большой прачечный уголок. В нем разместились сушильная и стиральная машина, а также осталось пространство для бытовой химии и уборочного инвентаря. . . Заказчики хотели получить светлый, современный интерьер с нотками французских интерьеров. Для этого мы в современную стилистику добавили такие приемы как плитка кабанчик на стене в ванной, фигурные молдинги в кухне-гостиной по потолку и в с/у по стенам, кварц-винил на полу с декором французская елка, ну и конечно же высокие белые филенчатые двери. Получился интересный микс современности и легкой французской классики.

Вопросы к фото 0