Ещё 3 фото
Сначала новые
Вам ответят эксперты. Пришлем уведомление, когда вам ответят
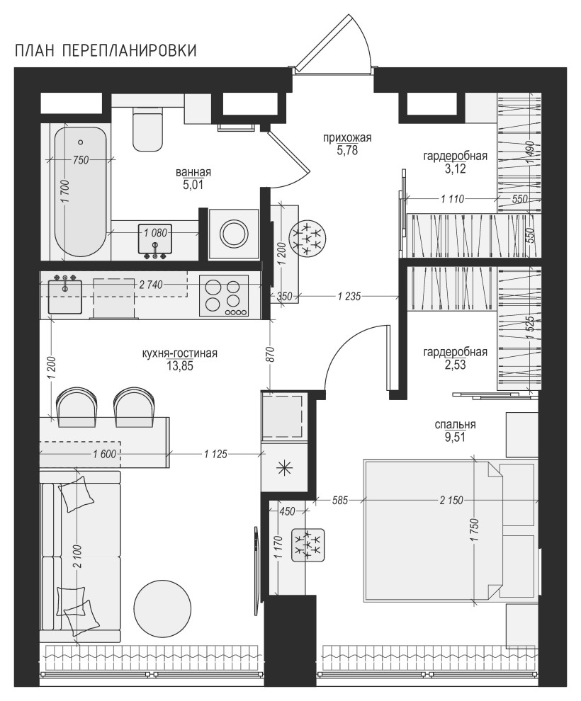
Контемпорари, кухня-гостиная, прихожая
Анна Бовтко
Дизайнеры интерьера
6
отзывов
5
Рейтинг
Контемпорари