ЖК Михайловский

Другие фотографии в проекте ЖК Михайловский

Вопросы к фото 0

Задайте вопрос

Вам ответят эксперты. Пришлем уведомление, когда вам ответят

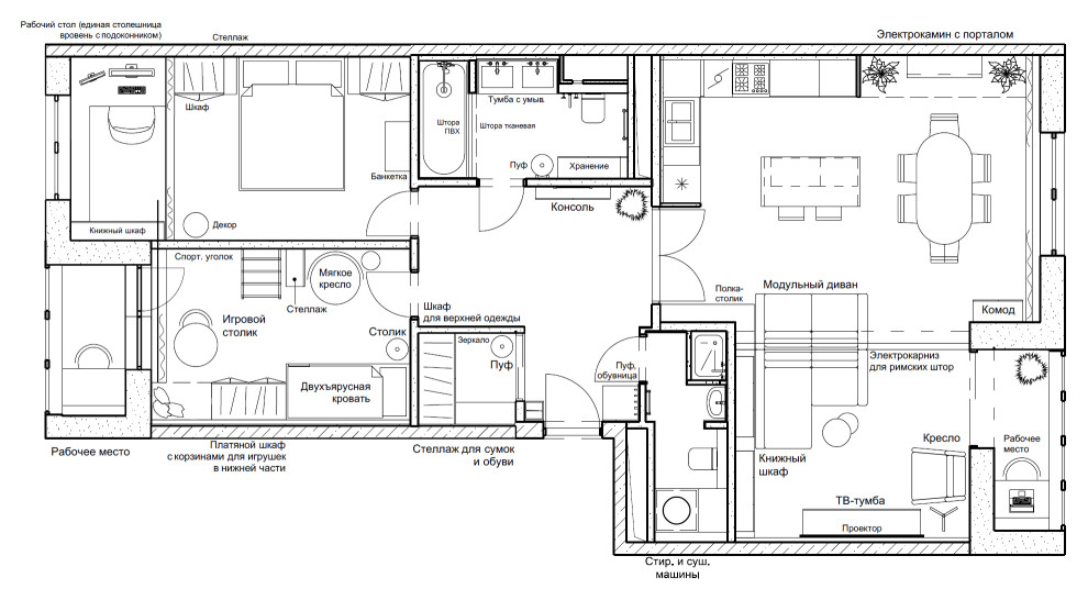
Москва, Эклектика, планировка квартиры, планировочное решение

Елена Громова

Елена Громова

Дизайнеры интерьера

Смотреть профиль

2

отзыва

5

Рейтинг

ЖК Михайловский

Планировочное решение

Вопросы к фото 0