
Архитекторы
5
·
10 отзывов
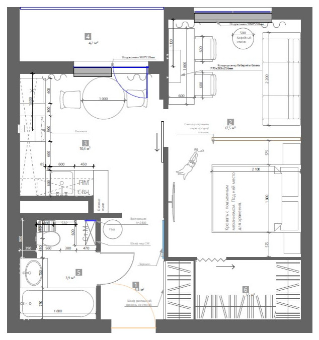
ЖК "Михайлово 31". Квартира 44м2.
Квартира для молодой, семейной пары. . Ребята начали ремонт самостоятельно, но на этапе выбора отделочных материалов и расстановки мебели в жилой зоне, поняли, что потребуется помощь дизайнера. . На основе уже имеющихся стен мы подправили расстановку мебели в квартире, сделали планы электрики, отделки потолка, стен и пола. Выбрали материалы и мебель.
Другие фотографии в проекте
Вопросы к фото 0
Задайте вопрос
Вам ответят эксперты. Пришлем уведомление, когда вам ответят




