
Дизайнеры интерьера
5
·
10 отзывов
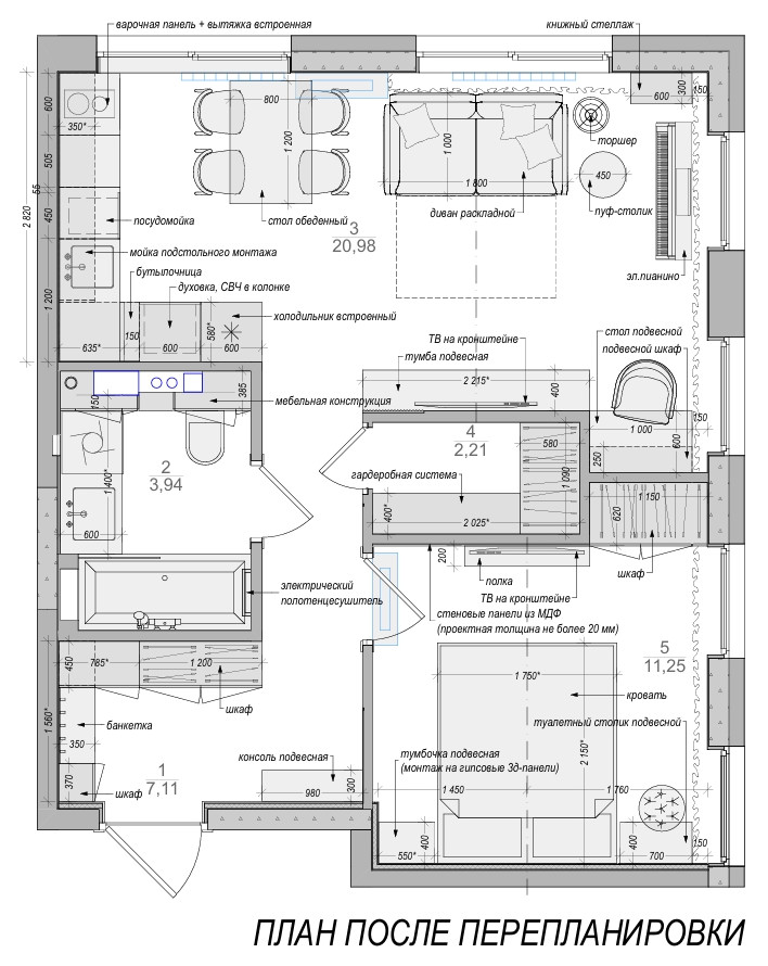
ЖК LEVEL Нагатинский, 1-к квартира 45 кв.м
ПЛАН ПОСЛЕ ПЕРЕПЛАНИРОВКИ
Другие фотографии в проекте
Вопросы к фото 0
Задайте вопрос
Вам ответят эксперты. Пришлем уведомление, когда вам ответят

Дизайнеры интерьера
5
·
10 отзывов
ПЛАН ПОСЛЕ ПЕРЕПЛАНИРОВКИ
Другие фотографии в проекте
Вам ответят эксперты. Пришлем уведомление, когда вам ответят