
Дизайнеры интерьера
0
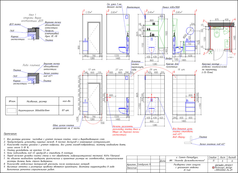
ЖК "Легенда Дальневосточного" для семьи Эл.
Двухкомнатная квартира 68 м2 для семьи из 4х человек, двое родителей и двое взрослых детей. Необходимо было предусмотреть много мест хранения, рабочие зоны для детей, гостиную зону трансформирующуюся в спальню и обеденный стол на большое количество гостей/большую площадь рабочей поверхности, т.к. места под кухню мало, а мама работает кондитером.
Другие фотографии в проекте
Вопросы к фото 0
Задайте вопрос
Вам ответят эксперты. Пришлем уведомление, когда вам ответят




