logo
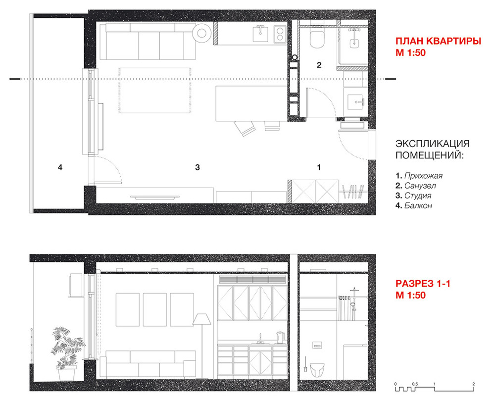
ЖК ЛАСТОЧКИНО КОРПУС Б (студия 31м2)

Другие фотографии в проекте ЖК ЛАСТОЧКИНО КОРПУС Б

ЖК ЛАСТОЧКИНО КОРПУС Б (студия 31м2)
ЖК ЛАСТОЧКИНО КОРПУС Б (студия 31м2)
ЖК ЛАСТОЧКИНО КОРПУС Б (студия 31м2)

Вопросы к фото 0

Задайте вопрос

Вам ответят эксперты. Пришлем уведомление, когда вам ответят

Скандинавский

Viacheslav Maikhrovich

Viacheslav Maikhrovich

Архитекторы

Смотреть профиль

0

отзывов

0

Рейтинг

ЖК ЛАСТОЧКИНО КОРПУС Б

бюджетный проект небольшой студии общей площадью 31 м²

Вопросы к фото 0