
Дизайнеры интерьера
5
·
3 отзыва
ЖК Лайнер
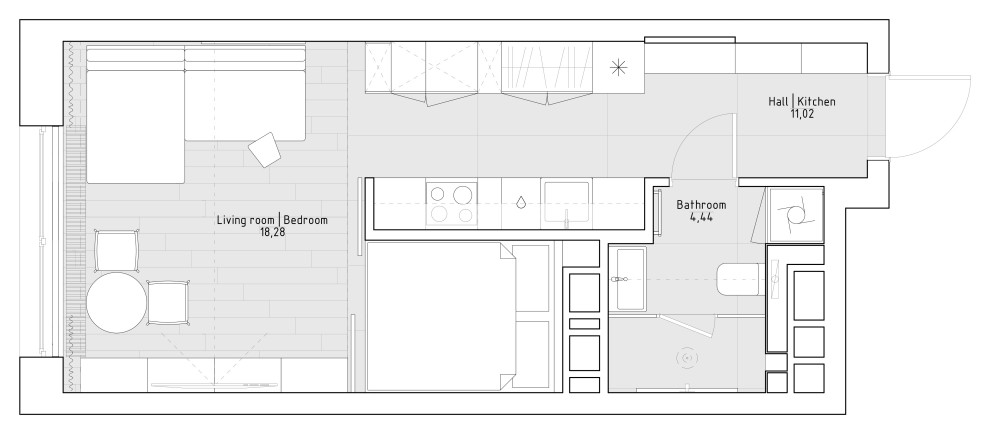
Эта квартира площадью 34 м² специально спроектирована для комфортного проживания двух человек. Главной целью проекта было создание максимально функционального и при этом уютного пространства, в котором найдется место всему необходимому для жизни. Для достижения ощущения простора и света была выбрана цветовая гамма в светлых серо-бежевых тонах, которая визуально расширяет границы помещений и наполняет их теплом. Стены и встроенная мебель выполнены в единой цветовой палитре, что придает интерьеру особую легкость и воздушность. Черные акценты в деталях светильников, мебели и декоративных элементах добавляют контраст. . . В проекте использованы материалы, которые гармонично сочетаются друг с другом, создавая единое стилевое решение квартиры. В отделке применены: белый мрамор, белая керамическая плитка, светлая краска серо-бежевого оттенка, декоративная штукатурка, дубовый паркет, тонированное зеркало, текстиль рогожка и металлические элементы в черном и стальном цветах. Ярким акцентом интерьера служит картина из эпоксидной смолы, она добавляет яркости и индивидуальности обстановке. . . This 34 m² apartment is carefully designed for the comfortable living of two people. The primary goal of the project was to design a space that is both functional and inviting, ensuring that there is a place for everything essential for living. To achieve a feeling of space and light, the design uses a colour palette of light grey-beige tones, visually expanding room boundaries and filling them with warmth. The walls and built-in furniture feature a unified colour palette, lending the interior a unique sense of lightness and airiness. Black accents in the details of lighting fixtures, furniture, and decorative elements add contrast. . . . The project uses materials that harmonise with each other, creating a unified style solution for the apartment. The finishes include: white marble, white ceramic tiles, light grey-beige paint, decorative plaster, oak parquet, tinted mirror, hessian fabric, and metal elements in black and steel colours. A bright focal point of the interior is an epoxy resin painting, adding vibrancy and uniqueness to the setting. .
Другие фотографии в проекте
Вопросы к фото 0
Задайте вопрос
Вам ответят эксперты. Пришлем уведомление, когда вам ответят




