
Дизайнеры интерьера
5
·
10 отзывов
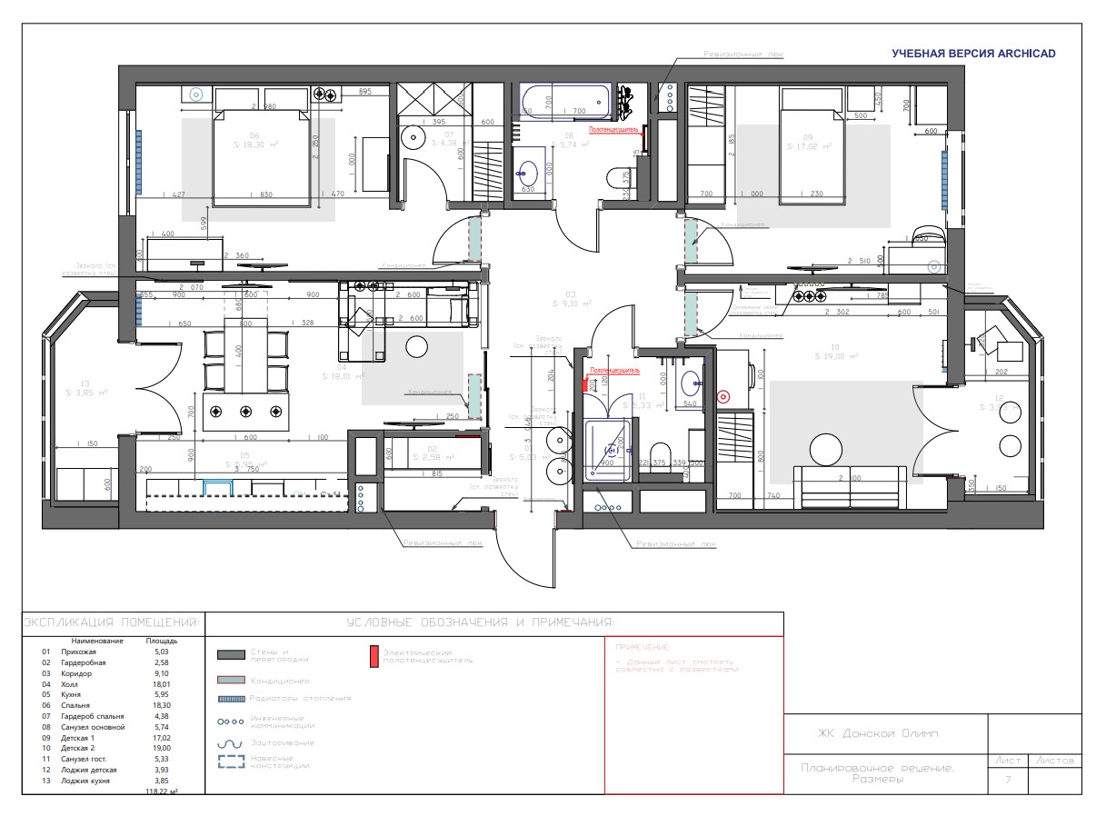
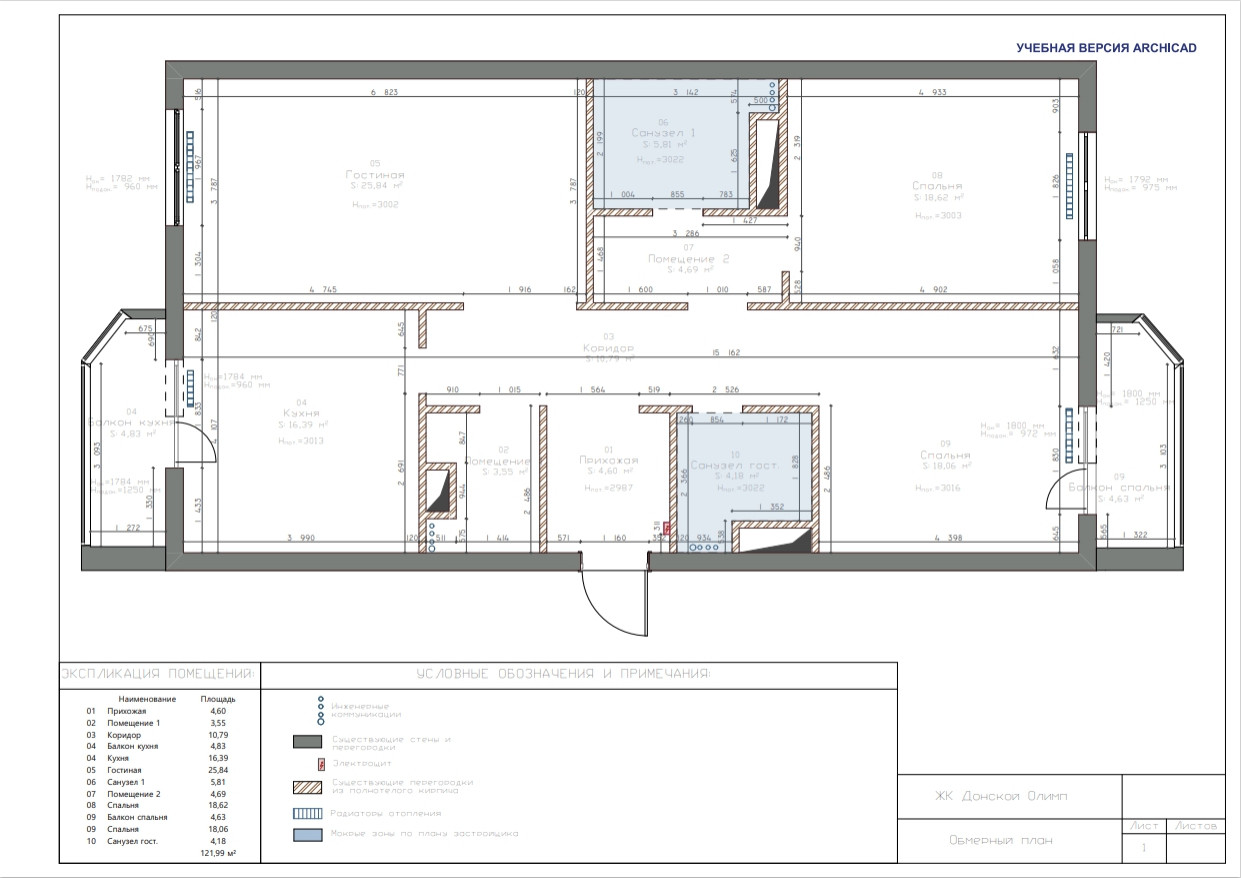
ЖК Донской Олимп 118 кв.м.
Объект: Квартира 118 кв.м. . Тип ремонта: Ремонт квартиры с нуля, без отделки. Создание планировочного решения и возведение стен. . Узаконенная перепланировка: изменение метража кухни-гостиной, увеличение площади санузлов и комнат, снос подоконных блоков с заменой на панорамные балконные двери. . Заказчик: молодая семейная пара . Задача: Создать светлое пространство с атмосферой легкости и расслабления. . Пожелания: . - Парадная прихожая с холлом . - Большая кухня-гостиная . - Гардеробные комнаты . - Много света . - Детская комната . - Гостевая комната . - Спальня с рабочим местом и туалетным столиком . Особенности проекта: . Мозаичное панно ручной работы, фигурное крупноформатное зеркало с подсветкой, кухонный остров (кварцит Blue Roma), подвесное освещение ручной работы (частная гончарная мастерская) над островом, настенные фрески под заказ, оформление стен в спальне, ночная подсветка плинтуса с диммированием.
Другие фотографии в проекте
Вопросы к фото 0
Задайте вопрос
Вам ответят эксперты. Пришлем уведомление, когда вам ответят
Декор, Контемпорари, Москва, Прикроватные тумбочки и столики, Спальня, Спальня и туалетные столики, кровать, мебель для спальни, оформление стен, подвесное освещение, потолочное освещение, спальня, текстиль
Похожие фотографии

Столетова
На фото: спальня в современном стиле с тюлем
Даша Мягкая

Резиденция композиторов
На фото: спальня в современном стиле с
A&ES

Дом для молодой семьи
Стильный дизайн: спальня в современном стиле - последний тренд
Ольга Мазанова

Кровать в стиле лофт
Пример оригинального дизайна: спальня в современном стиле
Bedpoint

Легкость бытия
Источник вдохновения для домашнего уюта: спальня в современном стиле
Veronika Kozina

Реализованный проект трёхкомнатной квартиры в современном стиле, г. Уфа.
На фото: хозяйская спальня среднего размера в современном стиле с бежевыми стенами, паркетным полом среднего тона, коричневым полом, деревянными стенами и акцентной стеной с
Анастасия Габдрахимова

роскошный серо-зеленый
Свежая идея для дизайна: спальня в современном стиле - отличное фото интерьера
CREATURA interiors

ЖК «Утесов»
На фото: спальня в современном стиле
Алексей Иванов

Квартира в Подмосковье
Пример оригинального дизайна: спальня в современном стиле
Диана Карнаухова

Фотосъемка дизайн-проекта в скандинавском стиле
На фото: спальня в скандинавском стиле
Анастасия Кутырина

Краснохолмская наб-я; Таганская
На фото: спальня в стиле неоклассика (современная классика)
FLIK Дизайн бюро

ЖК ЛЕОНТЬЕВСКИЙ МЫС дм
На фото: большая хозяйская спальня в современном стиле с паркетным полом среднего тона и панелями на части стены с
Александр Сенчугов




