
Дизайнеры интерьера
0
Жизнь за городом
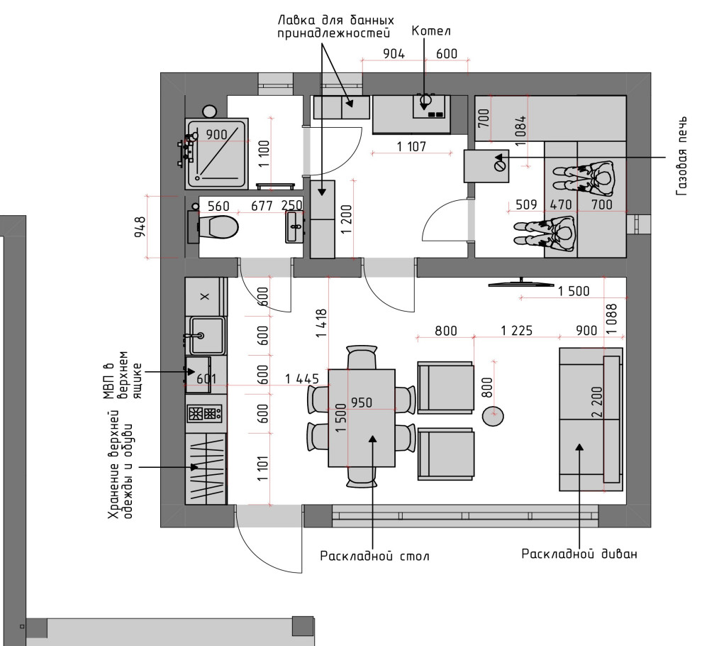
Ко мне обратились клиенты для разработки планировки и визуализации желаемого проекта бани на их загородном участке. . Так как фундамент уже был залит ранее, нам требовалось разработать только удобную планировку помещений так, чтобы уложиться в имеющиеся размеры, сохранив при этом весь необходимый функционал. . Проработав все возможные варианты расположения стен и мебели, мы нашли идеальный, точно подходящий моим клиентам. . В скором времени они смогут насладиться общением со своими гостями в удобном современном пространстве. .
Другие фотографии в проекте
Вопросы к фото 0
Задайте вопрос
Вам ответят эксперты. Пришлем уведомление, когда вам ответят


