logo
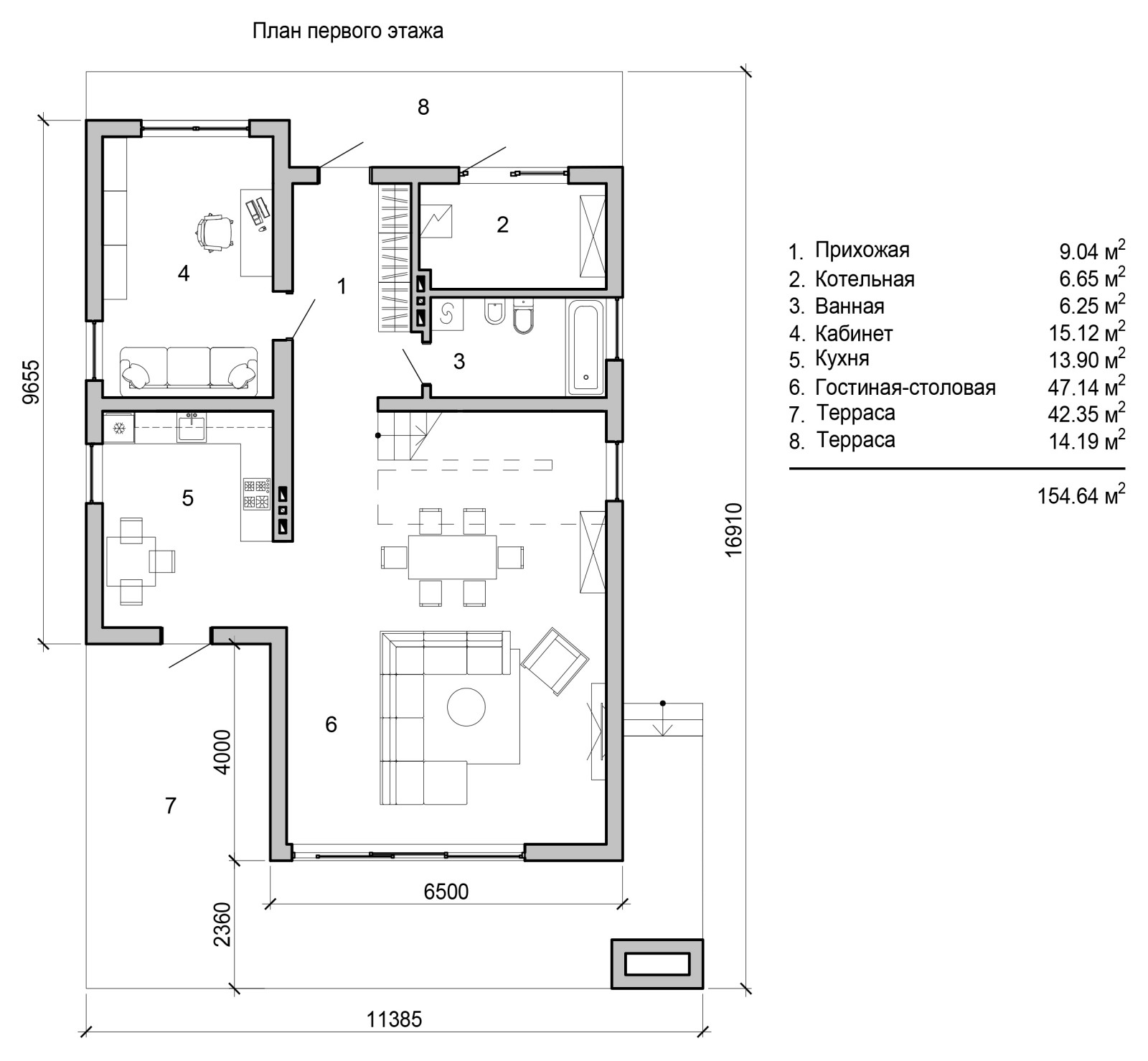
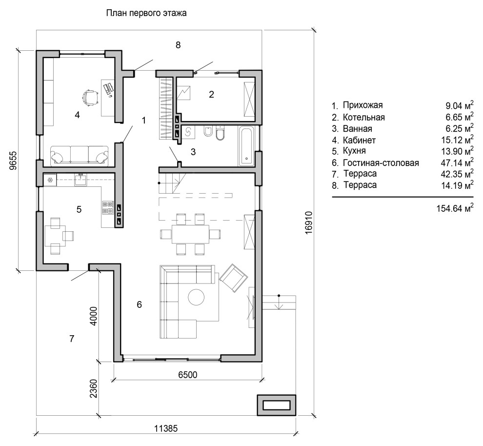
План 1 этажа

Другие фотографии в проекте Жилой дом в г. Геленджик

Диплом победителя конкурса Красивые дома 2019
Диплом победителя конкурса Красивые дома 2019
План 2 этажа
Жилой дом в г. Геленджик
Жилой дом в г. Геленджик

Вопросы к фото 0

Задайте вопрос

Вам ответят эксперты. Пришлем уведомление, когда вам ответят

Геленджик, Контемпорари, жилой дом, минимализм, современная архитектура, эко-тек

Алексей Варшавский
Смотреть профиль

1

отзыв

5

Рейтинг

Жилой дом в г. Геленджик

Частный дом расположен на склоне с видом на Геленджикскую бухту. Архитектурная концепция развивалась исходя из видовых характеристик места, с основной ориентацией на море или горы. Конструктивная схема дома — монолитный каркас, выбранный с учетом сейсмики региона и больших консольных конструкций. Для остекления дома использована витражная система со сдвижным типом открывания, стирающая границы между домом и природой. . . ​ . . Проект занял 1 место международного архитектурного конкурса «Красивые дома 2019» в номинации "Дизайн архитектурной среды" и 2 место в номинации "Лучший проект" и опубликован в журнале "Красивые дома" 2 (201) 2020

Вопросы к фото 0