logo
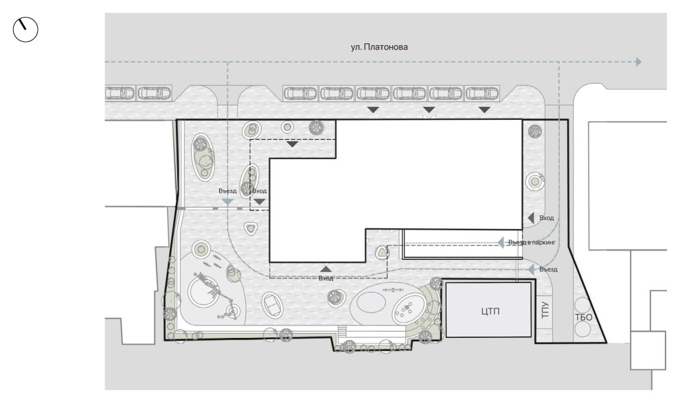
Жилой дом Платонова 23

Другие фотографии в проекте Жилой дом Платонова 23

Жилой дом Платонова 23
Жилой дом Платонова 23
Жилой дом Платонова 23
Жилой дом Платонова 23
Жилой дом Платонова 23

Вопросы к фото 0

Задайте вопрос

Вам ответят эксперты. Пришлем уведомление, когда вам ответят