
Архитекторы
5
·
10 отзывов
Жилой дом п. Изумрудный
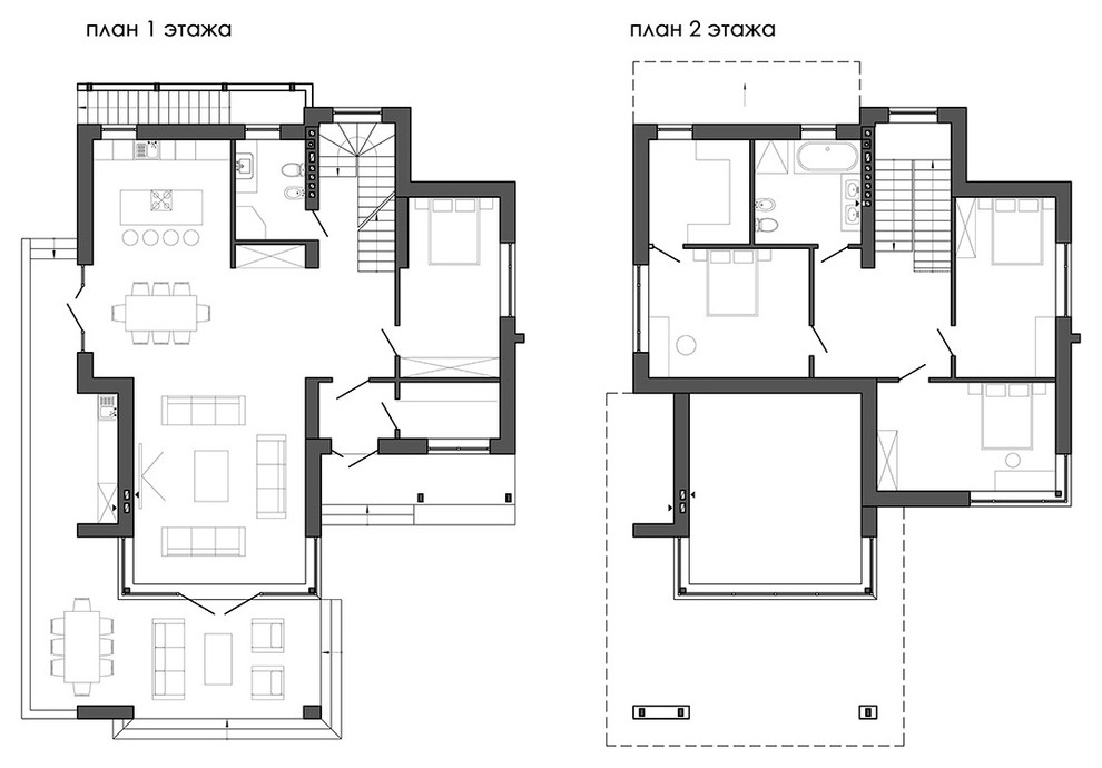
Современный жилой дом, площадью 250 квадратных метров расположен в коттеджном поселке в пригороде Ростова-на-Дону. Прямоугольный участок площадью стандартных 6 соток сориентирован к улице своей южной стороной. Такое расположение продиктовало размещение дома в глубине участка, для того чтобы была возможность вывести большинство жилых помещений на южную инсолированную сторону и не затенять внутренний двор. Первый этаж занимает полуторасветное единое пространство гостиной-кухни-столовой, из которого можно попасть на открытую террасу с летней кухней-барбекю. Второй этаж занимают спальни и просторная ванная комната. Все технические помещения находятся в подвальном этаже дома, в который есть отдельный вход с улицы.
Другие фотографии в проекте
Вопросы к фото 0
Задайте вопрос
Вам ответят эксперты. Пришлем уведомление, когда вам ответят




