
Архитекторы
5
·
10 отзывов
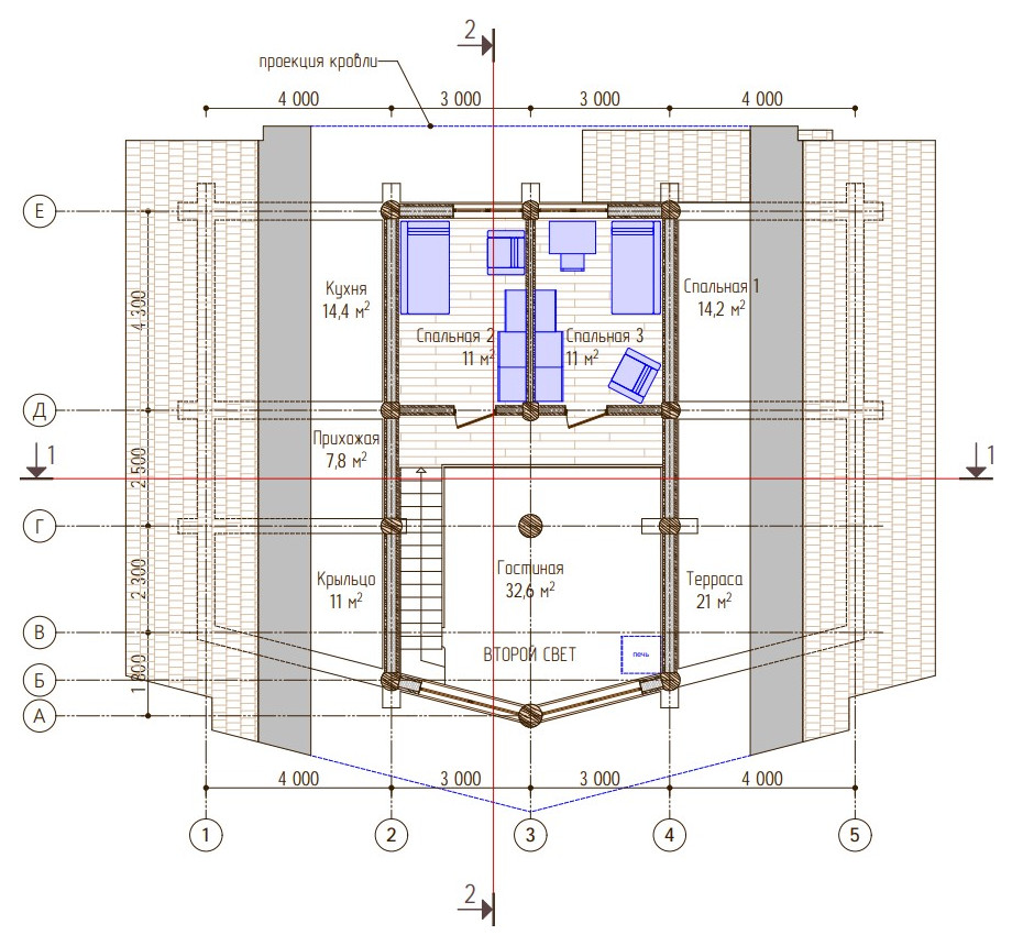
Жилой дом 124 кв.м из бревна ручной рубки
Дом с тремя спальными (одна (14 кв.м на первом этаже, две по 11 кв.м - на мансардном этаже. Проектом предусмотрен погреб со входом со стороны улицы и из кухни.
Другие фотографии в проекте
Вопросы к фото 0
Задайте вопрос
Вам ответят эксперты. Пришлем уведомление, когда вам ответят




