Заречье
Алексей Иванов

Алексей Иванов

Дизайнеры интерьера

3.93

·

10 отзывов

Заречье

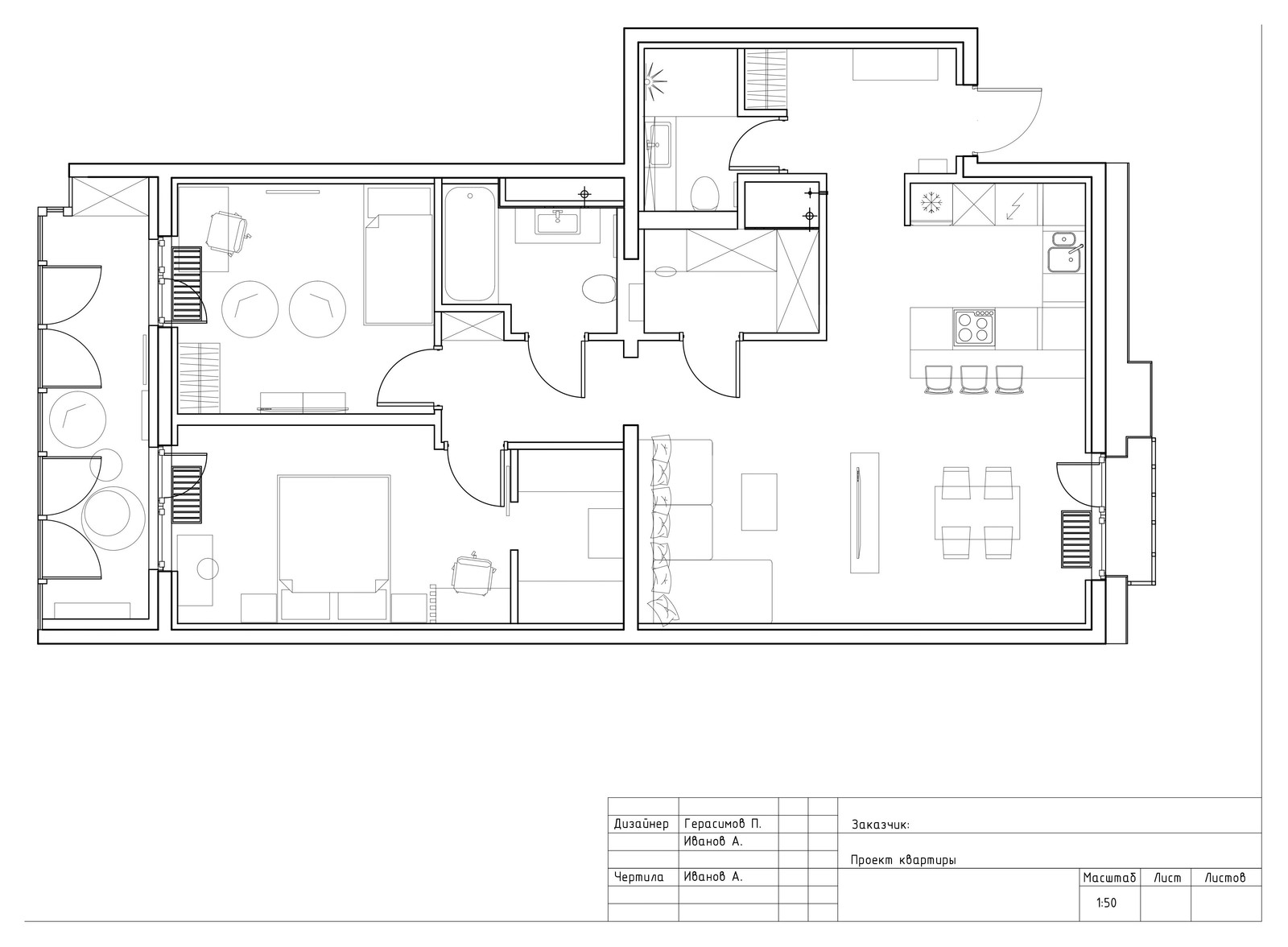
Дизайн-проект квартиры в пос. Заречье, общей площадью 90 кв. метров, был выполнен мастерской Geometrium для молодой семьи с ребенком (мальчик, 10 ле). Стояла задача создать светлый интерьер из натуральных материалов в отделке. В интерьере должна была быть лаконичность, а каждая деталь — продуманна и по делу. Ничего лишнего в интерьере быть не должно, только свежее и чистое пространство, которое оформлено с умом и функциональностью. Минималистичный эко-стиль был выбран, как основа проекта. . . . При разработки планировочного решения мы поделили квартиру на 2 части: . . - в одной части располагаются личные зоны по дальше от входа в квартиру: детская, спальня с гардеробной, ванная; . - в другой общественные зоны, которые мы расположили ближе к входу в квартиру: прихожая, гостевой с/у, постирочная-кладовая, кухня-гостиная-столовая. . . Таким образом, зоны спроектированы так, чтобы у каждого члена семьи была своя личная зона, где они могут уединиться. Они расположены подальше от входа, чтобы гости не смогли туда попасть без приглашения. . . Общественную зону мы максимально раскрыли и убрали все возможные перегородки, чтобы сделать визуально больше пространство. . . Стиль, цвета, материалы: . . Во всей квартире мы использовали одни и те же материалы в отделке и обивке мебели для того, чтобы визуально объединить все пространство в целом. Чтобы квартира воспринималась одним пространством, следовательно, казалось больше. . . В качестве отделки пола мы использовали инженерную доску выбеленного дуба и керамогранит с матовой текстурой бетона с бежевым оттенком. . . Стены — покраска, глянцевые панели, в с/у — керамогранит. . . В качестве акцентов — черный цвет, шпон слегка мореного дуба и зеленый цвет растений. . . В целом гамма квартиры нейтральных оттенков и оттенков, встречающихся в природе. Эко-стиль, в понимании заказчика, — просторный светлый интерьер с умеренным количеством зеленого цвета в растениях. И в этом мы единомышленники. . . Теперь пройдемся по зонам: . . Зона прихожей: . . В прихожей мы расположили самое необходимое, избавив помещение от лишних предметов мебели. Как только заходим в квартиру — мы видим вертикальное зеркало во всю высоту, чтобы смотреться перед уходом. В зеркало встроена подвесная тумба, неглубокая и компактная. Она нужна для хранения ключей и прочих мелочей. Визуально она увеличивается в двое за счет отражения и создается впечатление, будто тумба парит в воздухе. . . С другой стороны мы расположили напольную тумбу из шпонированного МДФ. В ней есть место, где можно присесть, а также закрытое место для хранения обуви и отделение для хранения сумок. . . За тумбой на стене мы расположили стабилизированный мох — минимум затрат сил и времени в ухаживании такого растения, при этом это живая зелень, которая задает атмосферу эко-интерьера. . . На против входа располагается гостевой санузел и шкаф для хранения верхней одежды. Около шкафа есть также зеркало в полный рост, где можно посмотреть на себя перед выходом. Также зеркало в углу визуально продолжает маленькое помещение, увеличивая его размеры визуально. . . Из прихожей мы попадаем в гостиную-кухню-столовую. В целом мы попытались создать эффект, что это одно единое помещение с прихожей, разделенное только шкафом кухни. . . Кухня-столовая-гостиная: . . Кухня, по пожеланию заказчика, максимально лаконична и функциональна. Она получилась вместительной, все хранение расположено в вертикальных шкафах. В острове — посудомоечная машина, духовка, плита и место для готовки. . . Напротив острова расположена барная стойка, чтобы пока хозяйка готовит — напротив смогли сидеть члены семьи и общаться. Также за барной стойкой удобно попить кофе, быстро позавтракать. . . Столовая зона выделена столом из того же шпона дерева, как и вся мебель на заказ. Над столовой зоной — подвесные споты белого цвета, визуально они не имеют веса и смотрятся легко, при этом отлично освещают стол. Стулья из ткани той же обивки, как и диван. . . За столом мы выделили стену глянцевыми панелями, как и фасады кухни, только разной ширины. Таким образом, создали некую симметрию с кухней и создали эффект одного неразделимого пространства с кухней. . . Гостиная зона выполнена с телевизором в центре композиции и диваном с журнальным столом. Стену за телевизором мы выделили теми же глянцевыми панелями, как и на кухне, и в зоне столовой. С помощью этих панелей создается ритм в помещении. В стене и потолке встроили аудиосистему из колонок. . . Над журнальным столом мы разместили люстру из двух сфер, она разбавляет строгость и геометричность интерьера. . . Коридор: . . Задача коридора — проходить мимо :) Поэтому мы не стали акцентировать внимание на деталях и избавили его от ненужной мебели — коридор максимально лаконичен. Двери во все помещения скрытые. . . Обратите внимание, как подсветка переходит с потолка на стену. Нам необходимо было выделить кусок стены, так как там шла часть несущей стены. Мы увеличили простенок и разместили там большой электрощиток с доступами ко всем источникам питания. Это было важным требованием заказчика. Торец шкафа мы выполнили в форме ниши и пустили туда светодиоидную ленту с потолка. . . Спальня: . . Вытянутое помещение коридорного типа мы визуально поделили на 2 части, чтобы сделать его правильнее и гармоничнее. При входе одна часть — это рабочая зона и вход в гардеробную, вторая — непосредственно зона сна и зона для make up. Также, чтобы расширить коридор нам пришлось съесть немного площади этой комнаты. Получилась комната слегка неправильной формы, поэтому это разделение на 2 части исправляет это положение. . . Стеллаж, отделяющий спальную зону от рабочей, несет в себе функцию хранения + не дает попадать свету с экрана в зону сна. Так как часто бывает, что муж работает допоздна, когда жена уже ложится спать. . . Изголовье кровати мы выполнили из мягких панелей во всю ширину зоны сна. Подвесные тумбочки по бокам кровати выполнены из того же шпона дуба, как и вся заказная мебель квартиры. Подвесные светильники той же модели, что и над столом в столовой зоне. . . Также в качестве функционального освещения мы использовали точечные направленные споты. Они нужны для чтения книг перед сном. . . Зону для макияжа мы сделали с помощью макияжного столика с откидной столешницей с зеркалом и своей системой хранения для косметики. Такой столик мы спроектировали специально для этого проекта на заказ. . . Детская: . . В детской будет жить юный любитель футбола и фанат Месси. Эта детская комната совсем скоро превратится в подростковую, поэтому помещение по своей сути нейтральное. Его можно будет легко переделать, заменив какие-то детали, таким образом, переоборудовать из детской комнаты в подростковую. . . В этой зоне есть все необходимое ребенку: футбольная тематика, кровать со вторым ярусом, рабочий стол с регулируемой ножкой, шведская стенка с турником, шкафы для одежды и ТВ с приставкой. . . В качестве освещения мы использовали встроенные светильники и подвесную люстру из Ikea. Также есть функциональная подсветка в виде бра на стене. . . Ванная и с/у гостевой: . . В ванной мы использовали ту же цветовую гамму, как и во всей квартире. Керамогранитная плитка с матовой текстурой бетона с бежевым оттенком сочетается с керамогранитом под дерево. Цвет дерева мы подобрали максимально похожий на тот, что на заказной мебели, чтобы визуально объединить помещения. Структура плитки в ванной напоминает панно на стене кухни. . . Зеркало в полный рост увеличивает пространство в два раза и создает эффект парящей в воздухе тумбы. Унитазы в обоих помещениях встроенные, чтобы не пропадало место над системой инсталляции — мы добавили встроенные стеллажи из шпонированного МДФ. . . Балкон: . . Балкон — место, где заказчики могли бы посидеть и расслабиться. Заказчики хотели добавить немного атмосферы лофта в интерьер на балконе. Для этого мы добавили в отделке клинкерный кирпич белого цвета. На стене повесили тот же стабилизированный мох и посадили пару растений. Хозяева квартиры смогут расположиться на креслах и попить кофе или чай на балконе с панорамным остеклением и прекрасным видом.

Другие фотографии в проекте

Вопросы к фото 0

Задайте вопрос

Вам ответят эксперты. Пришлем уведомление, когда вам ответят