
Архитекторы
0
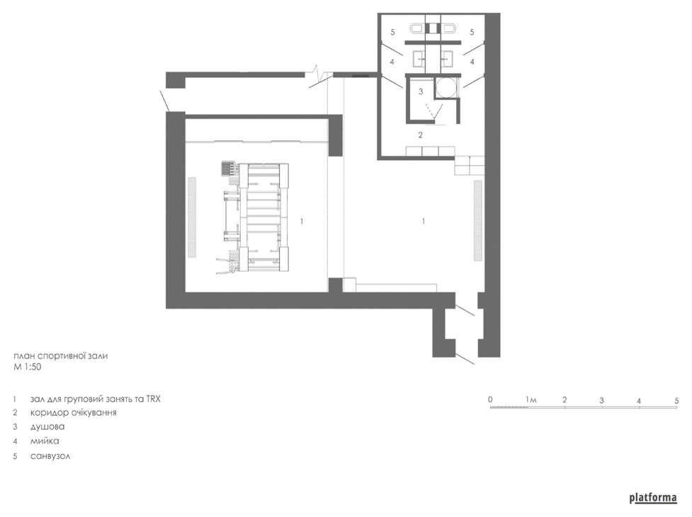
Зал для занятий йогой и TRX
Зал выполнен в стиле лофт с японскими минималистическими мотивами. Серые нейтральные тона прерываются теплыми оттенками финской фанеры и контрастными акцентами в виде спортивного инвентаря. Потолок сохранил фактуру опалубки и после очистки от побелки приобрел вид настоящего брутального бетона. Проводка, вентиляция, пожарные датчики – элементы, которые обычно стараются сделать незаметными, тут же напротив – открыты и контрастно взаимодействуют с остальным интерьером. Объем визуально увеличен за счет зеркал. Тренажер позволяет заниматься на петлях TRX, а также на гамаках fly-йогой.
Другие фотографии в проекте
Вопросы к фото 0
Задайте вопрос
Вам ответят эксперты. Пришлем уведомление, когда вам ответят
Похожие фотографии

Мансарда с сетчатым баром для ТВ-программы "Дачный ответ"
Свежая идея для дизайна: маленькая гостиная комната в стиле лофт для на участке и в саду - отличное фото интерьера
Архитектурное бюро LOFTING

Мансарда с сетчатым баром для ТВ-программы "Дачный ответ"
Пример оригинального дизайна: маленькая гостиная комната в стиле лофт для на участке и в саду
Архитектурное бюро LOFTING

Мансарда с сетчатым баром для ТВ-программы "Дачный ответ"
Свежая идея для дизайна: маленькая гостиная комната в стиле лофт для на участке и в саду - отличное фото интерьера
Архитектурное бюро LOFTING

Мансарда с сетчатым баром для ТВ-программы "Дачный ответ"
Свежая идея для дизайна: маленькая гостиная комната в стиле лофт для на участке и в саду - отличное фото интерьера
Архитектурное бюро LOFTING

Мансарда с сетчатым баром для ТВ-программы "Дачный ответ"
Источник вдохновения для домашнего уюта: маленькая гостиная комната в стиле лофт для на участке и в саду
Архитектурное бюро LOFTING

Мансарда с сетчатым баром для ТВ-программы "Дачный ответ"
На фото: маленькая гостиная комната в стиле лофт для на участке и в саду
Архитектурное бюро LOFTING

Мансарда с сетчатым баром для ТВ-программы "Дачный ответ"
Свежая идея для дизайна: маленькая гостиная комната в стиле лофт для на участке и в саду - отличное фото интерьера
Архитектурное бюро LOFTING

Мансарда с сетчатым баром для ТВ-программы "Дачный ответ"
Стильный дизайн: маленькая гостиная комната в стиле лофт для на участке и в саду - последний тренд
Архитектурное бюро LOFTING

Мансарда с сетчатым баром для ТВ-программы "Дачный ответ"
Источник вдохновения для домашнего уюта: маленькая гостиная комната в стиле лофт для на участке и в саду
Архитектурное бюро LOFTING

Мансарда с сетчатым баром для ТВ-программы "Дачный ответ"
На фото: маленькая гостиная комната в стиле лофт для на участке и в саду с
Архитектурное бюро LOFTING

Яркие акценты в интерьере
На фото: маленькая идея дизайна в стиле лофт для на участке и в саду с
Don Maison

Лофт-подвал
Идея дизайна: маленькая идея дизайна в стиле лофт для на участке и в саду
Альбина Шорина




