
Вам ответят эксперты. Пришлем уведомление, когда вам ответят
Контемпорари
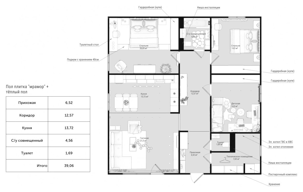
Просторный дом для одной большой семьи и трех поколений. Две взрослые спальни и одна детская. . Главные задачи заказчика: . Два туалета, . Много мест хранения, . Просторная воздушная гостиная . Спальня с подиумом . Большая кухня для двух хозяек, встраиваемый холодильник и морозильник. . Светлые тона. . Для решения задач разработан данный проект. . Большая кухня-гостиная 35м в светлых тонах с деревянными элементами. . Спальня хозяев с подиумом в натуральных оттенках дерева и невесомым туалетный столиком, вполне широким для использования в рабочих целях. . Функциональная детская со шкафом-купе длиной в 3,5м, современным рабочим местом и двухярусной кроватью. . Вторая взрослая спальня в классическом варианте для старшего поколения с большим шкафом-купе 3,5м. . При входе отделена грязная зона и вход в техническое помещение с котлами отопления и водоснабжения, зоной хранения и прачечным комплексом с доп.хранением бытовой химии и прочего. Так же вход в один из санузлов тоже обустроен при входе, что удобно при приёме гостей. . . Получился просторный, светлый и уютный дом, где всему и всем найдётся место.