
Дизайнеры интерьера
3.93
·
15 отзывов
ВТБ Арена Парк
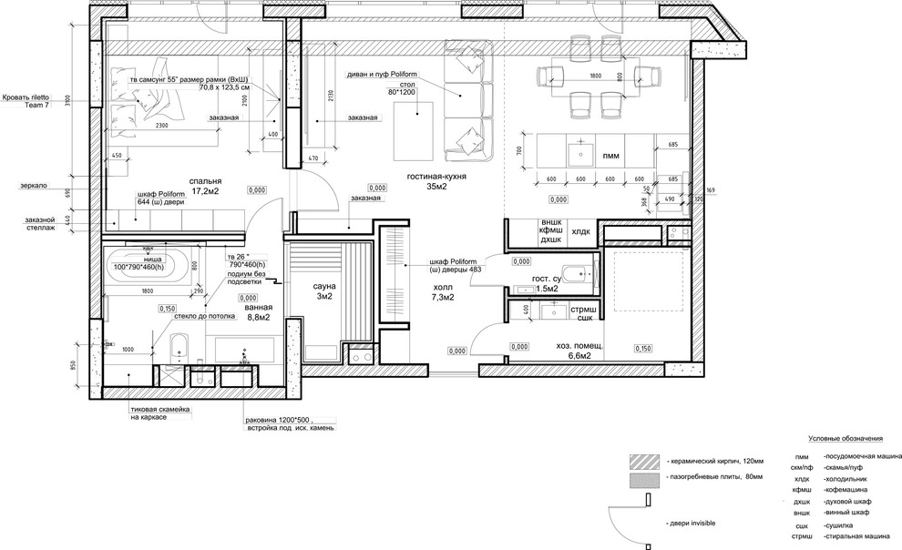
Проект студии Geometrium для заказчика, проживающего в Австрии. Планирует проживать в квартире только часть времени, когда пребывает в Москве. Имеет двоих детей-подростков – дочь и сын. Живут отдельно, но приезжают в гости. Играет на саксофоне и гитаре, любит рыбалку, часто готовит и принимает гостей, увлекается спортом.
Другие фотографии в проекте
Вопросы к фото 0
Задайте вопрос
Вам ответят эксперты. Пришлем уведомление, когда вам ответят




