
Архитекторы
0
"Весна в провансе с идеальной планировкой"
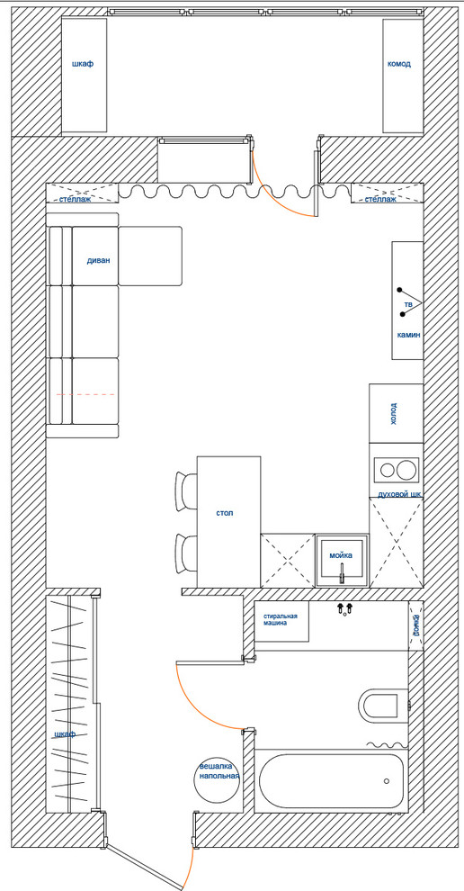
Автор проекта: Валентина Шойдина . Интерьер этой небольшой студии создавался в мае, поэтому мне хотелось наполнить пространство той жизненной энергией, которую получает природа весной. Для реализации главной идеи применила обои фабрики BN International из коллекции "Van Gogh" Ирисы на желтом фоне. Это точная копия картины великого художника. Жёлтый фон очень сильно контрастирует с цветом лепестков и излучает огромный поток энергии. Серый фон стен усиливает его и не отвлекает внимания от главного.В студии изначально была идеальная планировка и не пришлось ничего менять, это большая редкость среди нынешних новостроек. В прихожей разместился вместительный встроенный до потолка шкаф с зеркальными фасадами. Зеркала отлично раздвигают пространство и дают дополнительный свет в прихожую. На полу плитка испанской фабрики Mainzu Ceramicas из коллекции Lisboa. В ванной комнате на стенах плитка этой же фабрики из коллекций mural sonata и verona. Панно с изображением райских птиц играет сочными красками и заряжает бодростью на целый день. Практичная столешница тумбы выполнена из зеленого агломерата, в шкафу слева от раковины укрылась стиральная машина. В образовавшейся нише разместились полки из массива дуба, которые подчеркивают своей формой рисунок кирпичной кладки на стенах. На полу керамогранит kerama marazzi "мербау коричневый", который идеально дополняет композицию, имитирует настоящую древесину. Ну и конечно огромное зеркало на стене, которое компенсирует недостающие квадратные метры. В кухне-гостиной верхние навесные шкафы доходят до самого потолка, это позволяет использовать пространство по максимуму полезно, а за счет цвета фасадов они отлично маскируются и растворяются в комнате, становятся незаметными. Стол обеденный заменяет широкая барная стойка с тремя посадочными местами. Завершают композицию два светильника CopperCrystal Pendant Chandelier, с хрустальными подвесками, которые создают благоприятную атмосферу для общения за обеденным столом, и завораживают лучами отражающегося света. У окна разместились два вида стеллажей. Первый вариант с металлическими каркасами подойдёт творческой личности, второй с закрытыми фасадами для более практичных хозяев. На полу паркет фабрики Finex Arte раскладка "Нейплс", натуральное дерево добавляет теплоту серому цвету стен. Особого внимания заслуживает камин. Живой огонь свечей согреет в любую погоду и создаст особую интимную обстановку. Это придётся по вкусу романтикам, а более практичные натуры могут заменить камин на комод. Лоджия выполнена в общем ключе со всей квартирой,тут появилось уютное место для любителей утреннего кофе. Компактное кресло Contour Grant Featherston и консоль, изготовленная по индивидуальному проекту. Конечно же нельзя забывать о практичности, поэтому на лоджии разместила вместительный шкаф и комод. В итоге получилось пространство с идеальной планировкой, которое заряжает энергией и позитивом и даёт возможность отдохнуть от суеты городских будней. . .
Другие фотографии в проекте
Вопросы к фото 0
Задайте вопрос
Вам ответят эксперты. Пришлем уведомление, когда вам ответят




